建筑书签
人气 1952

[安徽]九华山莲花小镇 · 正清和雅禅院

[复制链接]
TAG 2019-9-12 15:06
04-MOMA-Lotus-Resort_Lacime-Architects.jpg

建  筑  师:上海日清建筑设计
地        址:九华山,池州,安徽,中国
主创建筑师: 宋照青,熊星
设计团队: 林琼华,魏一鸣,王军,章志武
建筑面积:2850.0 平方米
项目年份:2019
摄  影  师: 是然建筑, 张骑麟
厂       家:Shanghai yaju stone, France Titanium-zinc Panel, Shanghai HAojing Glass



01-MOMA-Lotus-Resort_Lacime-Architects.jpg
▲ 项目鸟瞰,远望地藏铜像

初见九华,山形清晰,山外有山,层峦叠嶂,不负“东南第一山”之美誉。

地藏铜像就这样静静的站立在山峰之下,与山、水、村庄一起,经受着岁月的洗礼。唐开元末年,金地藏卓锡九华,1600多年以来,地藏道场声名远播,九华的奇峰峻岭与佛教文化融为一体,独具风格。

34-MOMA-Lotus-Resort_Lacime-Architects.jpg
▲ 莲花小镇设计意向图,坐落在铜像旁

03-MOMA-Lotus-Resort_Lacime-Architects.jpg
▲ 禅院酒店鸟瞰,小镇的村口

02-MOMA-Lotus-Resort_Lacime-Architects.jpg
▲ 酒店屋顶与山峰呼应

莲花小镇就坐落在地藏铜像旁。说是小镇,更像一个村落,以自然肌理为脉络,建筑三五成群,形成聚落,既是旅客登山礼佛后的驿站,也可聚三五好友在青山绿水间煮酒夜话。

禅院酒店是莲花小镇的第一个建筑,也是小镇的村口。“一棵树、一口井、一只打鸣的公鸡”这是中国人脑海中的“村口”画面,也是思乡情愫中强烈的暗示。我们给予小镇的是充分的广场、广阔的水面、一口钟和那棵树。

05-MOMA-Lotus-Resort_Lacime-Architects.jpg
▲ 禅院外观,位于水面之上,与自然相融

06-MOMA-Lotus-Resort_Lacime-Architects.jpg

08-MOMA-Lotus-Resort_Lacime-Architects.jpg
▲ 建筑夜景

建筑并没有选择碎片的方式来消隐在自然之中,而是以完整的形态放置于水面上,似将四时之景纳入院中,又似院中岁月溢出山水天地,空间由人所创,禅境由心而生。

禅院就以这样一个拙朴姿态展现出来,然后交由漫长的岁月去填补,就像村庄、佛像的出现,是不同时期人类在自然中活动行为的结果,最终又必然与自然融为一体。



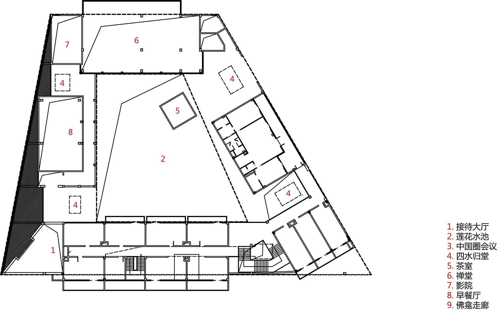
建筑的屋顶是一个回旋向上的坡屋面,最高点定义在场地的东南角,同时也解决了局部两层的功能设定。

完整的屋面之下,功能被进行了切割和完全的拉开,庭院嵌入其间,内外界限随之模糊,院内院外皆为水面,倒影中,可由外见禅院生活,又可由内见山中风雨。

25-MOMA-Lotus-Resort_Lacime-Architects.gif

建筑采用两种色调,灰色与木色,灰色在外木色在内,饰面砖以空斗砖墙的形制进行拼贴,其上覆以小青瓦屋面,于乡村的界面中,显拙朴与沉稳。

09-MOMA-Lotus-Resort_Lacime-Architects.jpg

内院则采用大量的木色铝板和玻璃,在阳光的作用下格外温暖。内外的材质在檐口之下进行过渡,吊顶的木色延伸至室外,倒影于水中,灰砖则转入走廊及小院四周,流动与延伸是空间的主题。

12-MOMA-Lotus-Resort_Lacime-Architects.jpg

11-MOMA-Lotus-Resort_Lacime-Architects.jpg

18-MOMA-Lotus-Resort_Lacime-Architects.jpg

36-MOMA-Lotus-Resort_Lacime-Architects.jpg

陡峭的屋面可以更好的营造光影,但对于固定小青瓦是个不小的挑战,天井采用进口菠萝格原木,打造徽居中典型的四水归堂,建造过程,仿佛是一场古今的对话。

20-MOMA-Lotus-Resort_Lacime-Architects.jpg

建筑主要功能作为酒店使用,房间设置在南面及东面,可望山敬佛。二层的部分,将房间横向布置,从而产生了一条内走道,天窗也自然而然出现,顶部的采光延伸到楼梯的位置,形成方形矩形若干窗井,随着光线的变化,这是一个意外生动的空间。

16-MOMA-Lotus-Resort_Lacime-Architects.jpg

14-MOMA-Lotus-Resort_Lacime-Architects.jpg

建筑给予场所、使用者去定义功能。设计理念取自于中国禅和茶的文化,空间的创作在高度、广度上给予足够的尺度,将自然山水人文穿插进建筑,而放松生活状态的停留或是感悟禅理哲学的升华,则交由不同的使用者去体验,小镇的意义也正在于此。


19-MOMA-Lotus-Resort_Lacime-Architects.jpg

22-MOMA-Lotus-Resort_Lacime-Architects.jpg

26-MOMA-Lotus-Resort_Lacime-Architects.jpg

27-MOMA-Lotus-Resort_Lacime-Architects.jpg

28-MOMA-Lotus-Resort_Lacime-Architects.jpg

29-MOMA-Lotus-Resort_Lacime-Architects.jpg

30-MOMA-Lotus-Resort_Lacime-Architects.jpg

31-MOMA-Lotus-Resort_Lacime-Architects.jpg

33-MOMA-Lotus-Resort_Lacime-Architects.jpg


回复

使用道具 举报

您需要登录后才可以回帖 登录 | 立即注册