建筑书签
人气 1620

[] [上海] gala集社

[复制链接]
TAG 2019-9-18 15:50
001-gala-in-shanghai-beijing-by-colorfull-yujing-design.jpg

项目名称:gala集社
项目地址:上海市静安区南京西路832号
设计方:COLORFULL 昱景设计
建筑面积:1,500㎡
项目设计 & 完成年份:2018
主创及设计团队:赵宗阳、小野良介、张颢、张亚云
摄影版权:直译建筑摄影
客户:上海福铭资产管理股份有限公司
品牌:地毯-鸿鼎;U型玻璃-阿普尔顿;锈色不锈钢-涵旺


Google map


项目位于上海市静安区南京西路中段,建筑面积1500平方米,应业主要求对其进行外立面改造与室内设计。

▼建筑外观,exterior view

011-gala-in-shanghai-beijing-by-colorfull-yujing-design.jpg

由于建造时间较早,该建筑平面轮廓线较其他沿街新建筑更为凸出;两侧环境乏善可陈,主入口隐藏在场地深处难以聚集人流。综合考察现场条件,最终拟定的设计概念为“The Edge”。意在把握凸出的有利位置,将一个尺度恰当而清晰的体块置入场地,使立面与街道景观产生新的联系,同时仍能保持商业建筑醒目的特质。

▼建筑采用“The Edge”的设计概念,充分利用地理位置,concept design of “the edge”, making full use of the favorable position of the bulge

020-gala-in-shanghai-beijing-by-colorfull-yujing-design.jpg

▼建筑改造过程,立面与街道景观产生新的联系,renovation process of the project, reconnecting the facade and the street landscape

010-gala-in-shanghai-beijing-by-colorfull-yujing-design.gif

设计以由外及内的关系推演为切入点,强调塑造转角建筑的体量感。钢板与U型玻璃一实一虚,前后呼应,承担了限定体量与模糊边界两种功能——在人行视角,前端起伏的介质呈现明确的体积感,后部半透明的轻盈带来边界的不确定性。透过行道树的映衬与遮蔽,起伏流动的转角以建筑语言重构。梧桐的季节变化被镀膜玻璃以倒影形式引入,消解了立面的纵向连续感,钢板造型的流动特征得以强调,藏在深处的入口由此具备向心力。设计概念正以此方式,激发场地活力。

▼建筑外观局部,钢板与U型玻璃一实一虚,前后呼应,partial exterior view, the solid steel plate and the transparent U-shaped glass echo back and forth

002-gala-in-shanghai-beijing-by-colorfull-yujing-design.jpg

室内层高极低,因此公共部分选择裸顶以充分利用现有高度,配合金属、玻璃、浅色自流平地面,使硬装部分呈现冷硬利落的效果,而植物与家具的置入又给使用者提供新一层次的体验。三层作为联合办公,具有多种复合功能属性,人们经半开放的独立办公区走出,在流动的公共空间,开始一段谈话,或者驻足观看被引入室内的风景。

▼室内平面关系图,plane diagram

015-gala-in-shanghai-beijing-by-colorfull-yujing-design.jpg

▼室内空间局部,公共空间选择裸顶以充分利用现有高度,partial interior view of the building, choosing the bare top for the public area to make full use of the existing height
003-gala-in-shanghai-beijing-by-colorfull-yujing-design.jpg 006-gala-in-shanghai-beijing-by-colorfull-yujing-design.jpg



▼室内空间局部,在黑白的室内空间中置入木材元素,partial interior view, inserting the material of the wood into the black and white interior space

004-gala-in-shanghai-beijing-by-colorfull-yujing-design.jpg

▼室内休息空间,透过大面积的玻璃窗可以看到外部空间中的绿树,the interior rest area, viewing the surrounding trees through the large windows

008-gala-in-shanghai-beijing-by-colorfull-yujing-design.jpg

独立房间的半透玻璃缓解了墙体围合带来的压力,将室内活动映射到公共区域,这种通透感也正是创意联合办公的重要属性。

009-gala-in-shanghai-beijing-by-colorfull-yujing-design.jpg

▼室内空间局部,半透玻璃缓解了墙体围合带来的压力,partial interior view, the translucent glass alleviates the pressure caused by the enclosure

017-gala-in-shanghai-beijing-by-colorfull-yujing-design.jpg

▼室内空间局部,半透玻璃营造出一种通透感,partial interior view, the translucent glass creates a sense of transparency

005-gala-in-shanghai-beijing-by-colorfull-yujing-design.jpg

▼室内楼梯空间,一侧采用白色穿孔板,interior stairs space with the white perforated plates on the one side

016-gala-in-shanghai-beijing-by-colorfull-yujing-design.jpg

▼室内楼梯空间,interior stairs space

018-gala-in-shanghai-beijing-by-colorfull-yujing-design.jpg

007-gala-in-shanghai-beijing-by-colorfull-yujing-design.jpg

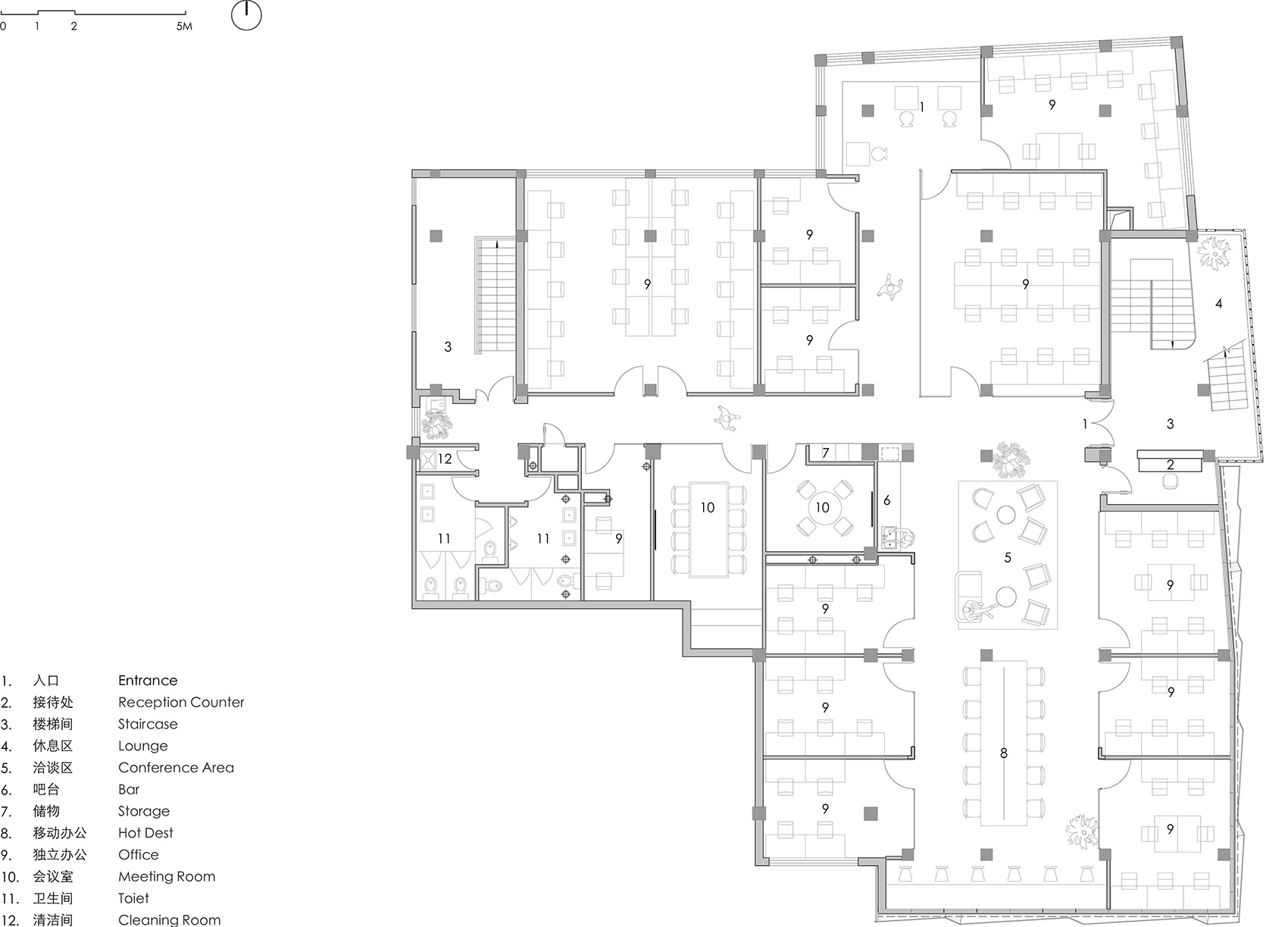
▼三层平面图,3F plan

014-gala-in-shanghai-beijing-by-colorfull-yujing-design.jpg

▼立面图,elevation

012-gala-in-shanghai-beijing-by-colorfull-yujing-design.jpg

▼剖面图,section

013-gala-in-shanghai-beijing-by-colorfull-yujing-design.jpg




回复

使用道具 举报

您需要登录后才可以回帖 登录 | 立即注册