建筑书签
人气 1814

[] [北京]朝阳区焚烧厂

[复制链接]
TAG 2019-9-18 16:43
009-incineration-center-of-domestic-waste-comprehensive-treatment-plant-at-chaoy.jpg

建筑师:李兴钢建筑工作室
地   址:北京,中国
类   别:基础设施
主创建筑师:李兴钢、张音玄、梁旭
建筑面积:36000.0 平方米
项目年份:2016
摄影师:张广源


Google map


001-incineration-center-of-domestic-waste-comprehensive-treatment-plant-at-chaoy.jpg

北京市朝阳区生活垃圾综合处理厂焚烧中心设计始于2011年4月,2016年10月建成投入使用。位于北京市朝阳区金盏乡高安屯村生活垃圾综合处理厂区,是一座拥有国际先进设备及工艺的现代大型垃圾焚烧中心。
011-incineration-center-of-domestic-waste-comprehensive-treatment-plant-at-chaoy.jpg

垃圾是人类城市生活的必然产物,垃圾处理中心也成为城市重要的市政公用设施。焚烧中心主厂房是厂区内体量及高度最大的建筑单体和核心建筑。

003-incineration-center-of-domestic-waste-comprehensive-treatment-plant-at-chaoy.jpg


013-incineration-center-of-domestic-waste-comprehensive-treatment-plant-at-chaoy.jpg

通过对内部工艺和外部围护系统的整合设计,建筑体量满足设备工艺对空间的要求,使建筑作为一个整体。

015-incineration-center-of-domestic-waste-comprehensive-treatment-plant-at-chaoy.jpg

014-incineration-center-of-domestic-waste-comprehensive-treatment-plant-at-chaoy.jpg

将垃圾运卸、存放、焚烧、净化、发电的工艺流程及空间特征表达出来,并在保证工艺要求和使用功能的前提下,强调建筑体量的完整性和工业建筑的力量感、尺度感。

007-incineration-center-of-domestic-waste-comprehensive-treatment-plant-at-chaoy.jpg

选用能够反映工业建筑特征的立面建材,形成简洁、朴素、高效、不过分夸张喧闹的外观,展示其独有的建筑形象

016-incineration-center-of-domestic-waste-comprehensive-treatment-plant-at-chaoy.jpg

在“方整”的基本形态基础上,在建筑转角、主要出入口、屋顶等位置进行了体量的细化处理。


017-incineration-center-of-domestic-waste-comprehensive-treatment-plant-at-chaoy.jpg
▼总平面图,site plan
002-incineration-center-of-domestic-waste-comprehensive-treatment-plant-at-chaoy.jpg

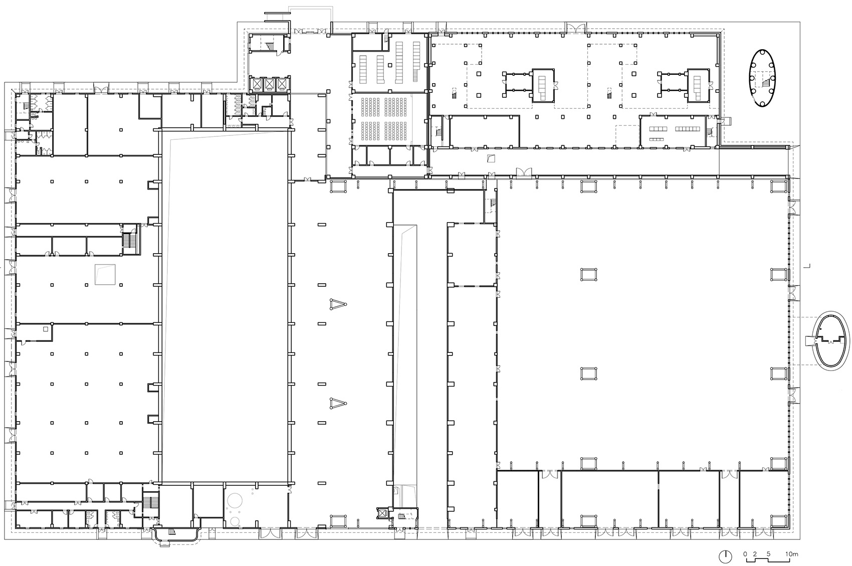
▼首层平面图,plan level 1

004-incineration-center-of-domestic-waste-comprehensive-treatment-plant-at-chaoy.jpg

▼屋顶平面图,roof plan
006-incineration-center-of-domestic-waste-comprehensive-treatment-plant-at-chaoy.jpg

▼东立面图,east elevation

010-incineration-center-of-domestic-waste-comprehensive-treatment-plant-at-chaoy.jpg

▼剖面图,section


008-incineration-center-of-domestic-waste-comprehensive-treatment-plant-at-chaoy.jpg


▼轴测图,axon
012-incineration-center-of-domestic-waste-comprehensive-treatment-plant-at-chaoy.jpg

项目名称: 北京市朝阳区生活垃圾综合处理厂焚烧中心
建筑事务所: 李兴钢建筑工作室
电邮联系方式: lxg@cadg.cn
主创建筑师: 李兴钢、张音玄、梁旭
项目详细地址: 北京市朝阳区
项目完成年份: 2016年
建筑面积:3.6万平方米
摄影师: 张广源
其他参与者 :中国城市建设研究院有限公司
建筑: 张颖梅、刘梁栋
结构: 陈昆、于哲权、陈希、梁能山、徐小平、杨凡
机电: 闫晓强(水)、张舜(水)、庞炳颖(水)、张旭楠(水)、熊岩(暖)、孙潇(暖)、吕德彬(电)、宋美红(电)、邓丽红(电)
工艺: 洪光、郝江涛、银正一、赵联淼、龚燊、季辉、郝晓明、郭俊伟、张召、白永凤



005-incineration-center-of-domestic-waste-comprehensive-treatment-plant-at-chaoy.jpg
回复

使用道具 举报

您需要登录后才可以回帖 登录 | 立即注册