建筑书签
人气 1770

[] [台湾]枝光院

[复制链接]
TAG 2020-5-6 14:05
022-Light-Housing-by-Shen-Ting-Tseng-Architects.jpg

Architect’ Firm: Shen Ting Tseng Architects
Lead Architects: Shen Ting Tseng
Surname: Shen
Given name: Ting Tseng
Country: Taiwan
Photo credits: Lucas K. Doolan
General project information
Project Name: Light-Housing
Project location: Hsinchu County, Taiwan
Client: Yomu Development Corp.
Year of completion: 2016


Google Map


本案基地位于台湾新竹县竹北市,考量区域生活型态及地块尺寸,基地上的建筑设定为连栋透天住宅。在地狭人稠的台湾西部城市,连栋透天住宅是具有特殊普遍性的住宅类型。我们试着回到这个类型本身,表达「连栋」及「透天」所带动的「邻居关系」与「自然关系」。

▼住宅立面,facade

023-Light-Housing-by-Shen-Ting-Tseng-Architects.jpg

Light-House is located in Hsinchu County, Taiwan. This multi-storied residential building block is designed in consideration of common Taiwanese terrace style houses. This project seeks to rethink the fundamentals of this particular housing model and intends to reinvigorate its underlining idea as “Lian-dong” (describing a continuous housing block) and “Tou-tian” (terrace houses describing buildings with roof spaces open to the sky) in the design approach.

▼住宅外观,exterior views

005-Light-Housing-by-Shen-Ting-Tseng-Architects.jpg

032-Light-Housing-by-Shen-Ting-Tseng-Architects.jpg

018-Light-Housing-by-Shen-Ting-Tseng-Architects.jpg

「连栋」具有相依靠的邻里关系之深层意义,「透天」则是人与自然的亲密连结,近三十年的透天住宅已渐渐遗忘这份初衷,剩下连栋的经济性与透天的占有性与便利性。人虽拥有土地,却不再与土地及邻里共处。

Traditionally, the more accurate implication of the term, “Tou-tian”, described the relationship between man and nature; “Lian-dong” suggested a dependent relationship between neighbors. The contemporary version of the Taiwanese terrace style housing has lost this connection to its original intensions, although people have land, the connection between neighbors and nature has greatly diminished.

▼室内空间,interior

009-Light-Housing-by-Shen-Ting-Tseng-Architects.jpg

▼开放楼梯,open staircase

007-Light-Housing-by-Shen-Ting-Tseng-Architects.jpg

▼天光透入楼梯间,the light is filtered into the stair well

011-Light-Housing-by-Shen-Ting-Tseng-Architects.jpg

010-Light-Housing-by-Shen-Ting-Tseng-Architects.jpg

▼空气、光与生活被注入建筑内部,air, light and life are integrated into the space

008-Light-Housing-by-Shen-Ting-Tseng-Architects.jpg
038-Light-Housing-by-Shen-Ting-Tseng-Architects.jpg

▼楼梯细部,staircase detailed view

012-Light-Housing-by-Shen-Ting-Tseng-Architects.jpg

013-Light-Housing-by-Shen-Ting-Tseng-Architects.jpg

本案设计从连结自然的意图开始,通过对生活的想像,构思一系列「开放的空间元素与可运动的建筑元素」:庭院、天井、阳台、露台、开放楼梯与大树,置入以天井为中心、鼓励元素开放的空间架构。透过此构架,空气、光及生活,注入建筑内部,住宅得以与这些元素连结、融合,住宅中水平与垂直关系也随之敞开。

The project proposes another version of a contemporary housing model for Taiwan, encouraging spatial encounters in connection with the natural environment by introducing the elements of “breathing pockets” between spaces and within each level – courtyards, balconies, terraces, and light wells. These elements are designed in relationship to its internal staircases, rooms and open spaces in order to generate a layered spatial relationship vertically and horizontally within each multi-leveled unit. This layered interior condition creates private spaces within open spaces; therefore, generating a sense of retreat within a vast space.

▼开放的户外口袋空间,breathing pockets

024-Light-Housing-by-Shen-Ting-Tseng-Architects.jpg

001-Light-Housing-by-Shen-Ting-Tseng-Architects.jpg



面对外部略显贫乏的环境以及室内采光需求之两难,在建筑内外交界2公尺范围内布置出带有半户外性格的外壳空间层,创造内部层次与深度,让内部空间敞向自然之同时,仍给予人被包被的私密感。

Natural light and wind are brought into the interior, through layers of square openings and windows on the southern elevation, transforming the internal spaces with varying lighting conditions throughout the day. Natural light extend to every corner of the home, creating brighter interior spaces and allowing growth and vitality of greenery internally.

▼让每个角落充满自然光,natural light extend to every corner of the home

036-Light-Housing-by-Shen-Ting-Tseng-Architects.jpg

逐层退缩的混凝土盒子上,方形洞口与方形窗散置布设,维系抽象的社区建筑整体;户与户间的露台缝隙、跟随量体的分户墙凹凸运动,于连续中制造停顿,使得户户分明,同时保有敦亲睦邻的空间可能性。

Externally, instead of a continuous facade treatment, the facade recedes inward at the position of internal sheer walls in order to construct a visual gap between houses, while retaining spatial possibilities for chance encounters between neighboring properties – creating a home environment where “inside as outside, outside as inside”.

▼建筑户户分明,同时保有敦亲睦邻的空间可能性,the orderly facade retains spatial possibilities for chance encounters between neighboring properties

006-Light-Housing-by-Shen-Ting-Tseng-Architects.jpg

▼立面细部,facade detail

033-Light-Housing-by-Shen-Ting-Tseng-Architects.jpg

014-Light-Housing-by-Shen-Ting-Tseng-Architects.jpg

▼夜景,night view

015-Light-Housing-by-Shen-Ting-Tseng-Architects.jpg

020-Light-Housing-by-Shen-Ting-Tseng-Architects.jpg

▼轴测图,axon

003-Light-Housing-by-Shen-Ting-Tseng-Architects.jpg

▼剖透视图,sectional perspective

025-Light-Housing-by-Shen-Ting-Tseng-Architects.jpg

▼首层平面图,plan level 1

026-Light-Housing-by-Shen-Ting-Tseng-Architects.jpg

▼二层平面图,plan level 2

028-Light-Housing-by-Shen-Ting-Tseng-Architects.jpg

▼三层平面图,plan level 3

027-Light-Housing-by-Shen-Ting-Tseng-Architects.jpg

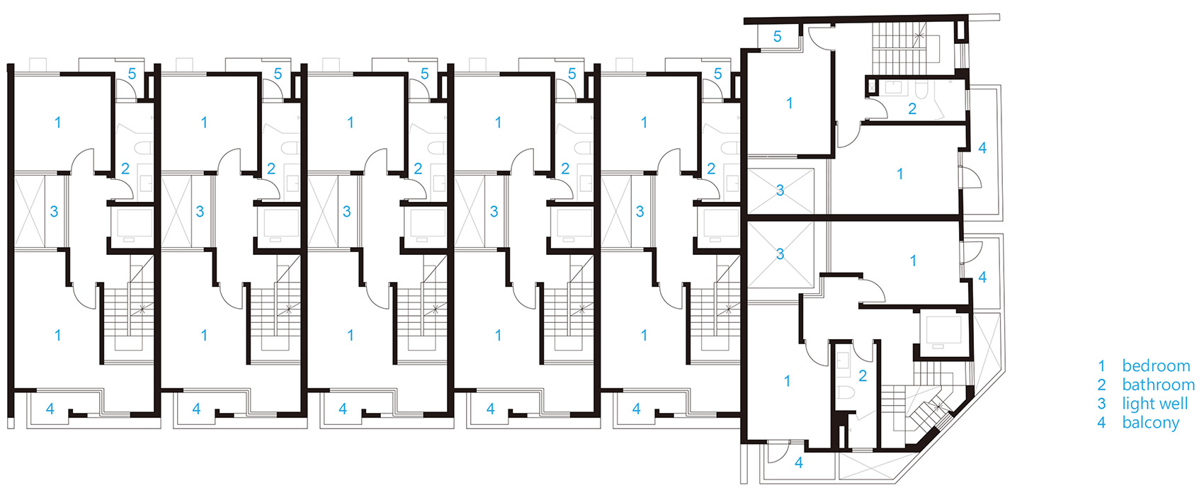
▼四层平面图,plan level 4

029-Light-Housing-by-Shen-Ting-Tseng-Architects.jpg

▼剖面图,section

030-Light-Housing-by-Shen-Ting-Tseng-Architects.jpg






回复

使用道具 举报

您需要登录后才可以回帖 登录 | 立即注册