建筑书签
人气 1798

[] [浙江]宁波图书馆

[复制链接]
TAG 2020-5-18 18:45
Schmidt_Hammer_Lassen_Architects_Ningbo_New_Library_01.jpg

建筑师: SHL
面积: 31800 m²
项目年份: 2019
摄影师: Adam Mørk


Schmidt_Hammer_Lassen_Architects_Ningbo_New_Library_Cover_photo.jpg

来自丹麦SHL建筑事务所十二年前于上海设立办公室,宁波图书馆新馆是SHL在国内完成的第一个图书馆项目,建筑面积为31,800平方米。项目位于上海以南200公里处的国家历史文化名城、滨海重镇——甬城宁波。新建成的宁波图书馆成为能够推动城市持续发展的重要因素之一。

Schmidt_Hammer_Lassen_Architects_Ningbo_New_Library_05.jpg
Schmidt_Hammer_Lassen_Architects_Ningbo_New_Library_06.jpg

宁波图书馆老馆始创于1927年,是浙东地区馆藏最丰富、最完整的图书馆,每天能够接待三四千名访客。“书藏古今,港通天下”,宁波图书馆新馆旨在打造成为一座开放、包容的建筑。建成后日均接待量翻倍,已然成为宁波东部新城核心区的文化据点。SHL建筑事务所合伙人兼设计总监Chris Hardie表示:“七年前,当我们第一次来到宁波时,东部新城才刚开始逐步开发建设。宁波图书馆新馆,不仅是新生态湿地景观的一部分,还是当地文化脉络的一部分。这对我们团队来说,也是一个具有里程碑意义的项目。”

Schmidt_Hammer_Lassen_Architects_Ningbo_New_Library_13.jpg

Schmidt_Hammer_Lassen_Architects_Ningbo_New_Library_12.jpg


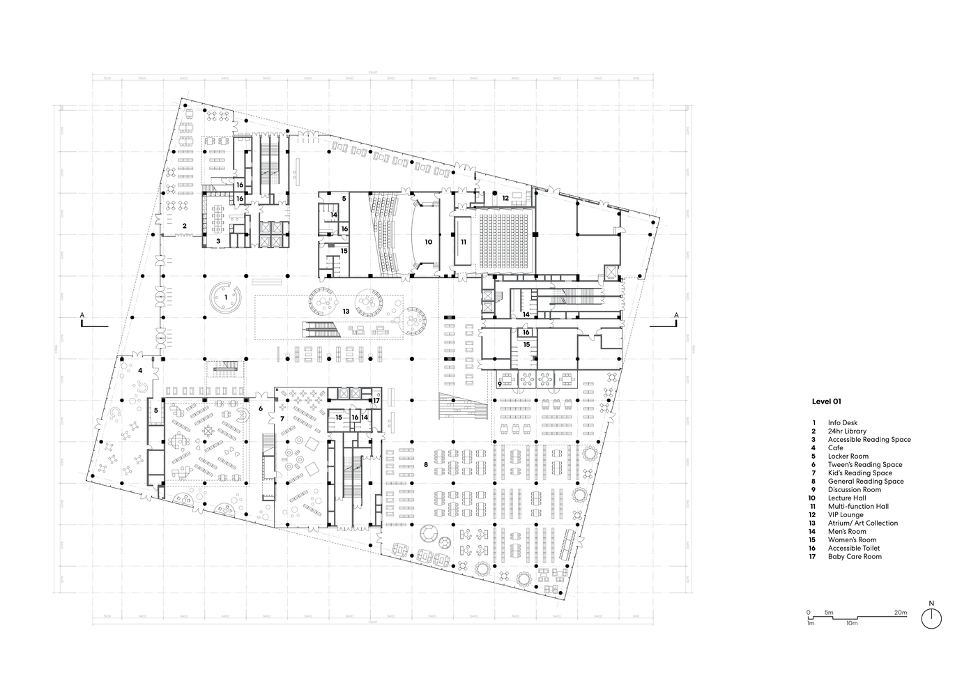
开放,包容,二百万册书籍的新家新馆首层围绕8000平方米的开放的文化市集展开,拥有最热门的图书馆功能区和馆藏,其中包括主门厅、读者服务区、少儿图书馆、24小时自助图书馆、盲人阅览室、两个讲堂、宽敞的图书阅览室和咖啡厅。底楼四面开放,与外部公共广场、景观生态公园和湖泊相连。

Schmidt_Hammer_Lassen_Architects_Ningbo_New_Library_17.jpg

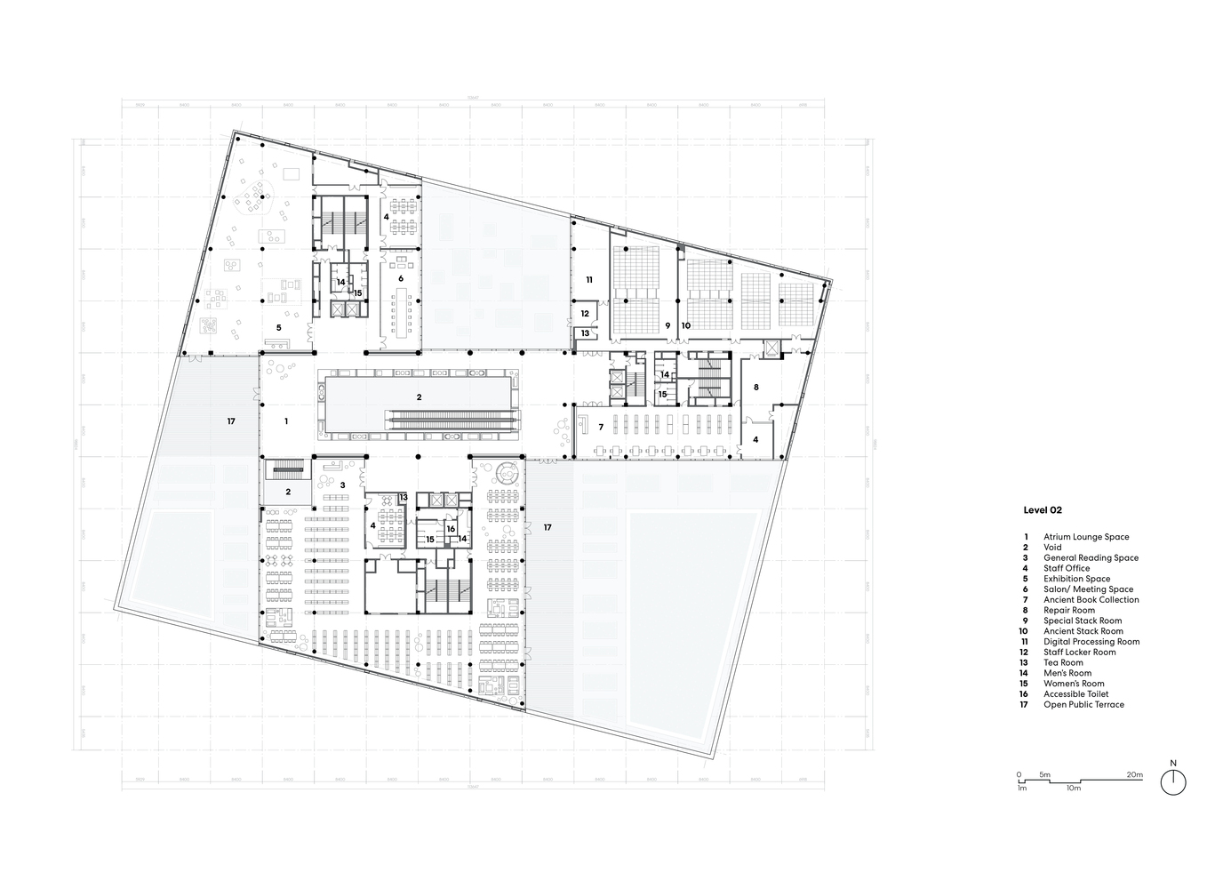
Chris Hardie说:“我们想为宁波设计一座便捷易达的建筑。以前的图书馆如同迷宫一般,所以我们希望宁波图书馆新馆拥有一个理性、清晰的空间布局。”图书馆的中央是一个五层通高的大中庭。28 米高的“中央公共大书架”,将首层的文化市集,与上层一系列更为安静的专业研究空间和古籍地方文献阅览室联系起来。所有室内空间的自然采光都通过建筑设计进行优化,中央中庭则最大限度地利用自然通风。

Schmidt_Hammer_Lassen_Architects_Ningbo_New_Library_18.jpg

Schmidt_Hammer_Lassen_Architects_Ningbo_New_Library_Section.jpg

Schmidt_Hammer_Lassen_Architects_Ningbo_New_Library_16.jpg

Schmidt_Hammer_Lassen_Architects_Ningbo_New_Library_14.jpg

Schmidt_Hammer_Lassen_Architects_Ningbo_New_Library_10.jpg


冥想景观

新馆的空间和建筑概念,在东部新城的核心开发区营造了一种强烈的标识感。由湿地通向主入口,小桥、流水、步道与大自然融为一体,使得访客能够在这片都市绿洲中逃离喧嚣获得片刻的宁静。独特、开放的幕墙迎接着访客,映射在湖面上波光粼粼。静谧的新馆景观包括了由花园池塘形成的水生动植物生态聚落。在适宜冥想和沉思的景观环境中,人们得以脱离繁忙的日常生活,享受宁静和放松。
Schmidt_Hammer_Lassen_Architects_Ningbo_New_Library_11.jpg

Schmidt_Hammer_Lassen_Architects_Ningbo_New_Library_15.jpg

宁波图书馆新馆,是SHL建筑事务所近期在宁波完成的几个项目之一。此外,SHL近期在宁波落成的项目还包括宁波日报报业集团总部和宁波职工之家。
Schmidt_Hammer_Lassen_Architects_Ningbo_New_Library_02.jpg

Schmidt_Hammer_Lassen_Architects_Ningbo_New_Library_Site_plan.jpg
Schmidt_Hammer_Lassen_Architects_Ningbo_New_Library_Plans-01.jpg

Schmidt_Hammer_Lassen_Architects_Ningbo_New_Library_Plans-02.jpg

Schmidt_Hammer_Lassen_Architects_Ningbo_New_Library_Elevation_Lineworks-01.jpg

Schmidt_Hammer_Lassen_Architects_Ningbo_New_Library_Elevation-03.jpg

Schmidt_Hammer_Lassen_Architects_Ningbo_New_Library_Elevation_Lineworks-02.jpg

Schmidt_Hammer_Lassen_Architects_Ningbo_New_Library_Elevation-04.jpg

Schmidt_Hammer_Lassen_Architects_Ningbo_New_Library_Sketch.jpg



回复

使用道具 举报

您需要登录后才可以回帖 登录 | 立即注册