建筑书签
人气 2529

[] [浙江]衢州礼贤未来社区

[复制链接]
TAG 2022-12-2 16:35
not-ready-quzhou-lixian-future-community-resettlement-housing-gad_16.jpg
建筑师: gad
面积 : 194900 m²
项目年份 : 2022
摄影师 :侯博文
厂家 :  信义玻璃, 德普威, 江苏恒美, 浙江周旭

not-ready-quzhou-lixian-future-community-resettlement-housing-gad_13.jpg

| 城市化的公共社区

衢州礼贤未来社区位于衢州城西南侧,东至新元路,南至双港大桥,西邻衢江,与严家淤岛屿隔江相望。社区总体规划强调开放性;社区用地中心布局邻里中心和社区幼儿园,以实现社区资源的便利共享;社区将底层抬高,通过建立开放共享的立体架空慢行系统,连接社区内各居住组团、邻里中心和幼儿园,并跨江连接严家淤无车活力岛,在实现人车分流的同时,建立起一个真正开放、可达、可玩、安全的城市公共空间,模糊了社区与城市的边界;社区底层外围布置菜场、店铺、幼教中心、养老机构、创业支持等社区、城市公共服务与功能,让城市性在社区外围得以实现。



not-ready-quzhou-lixian-future-community-resettlement-housing-gad_8.jpg

not-ready-quzhou-lixian-future-community-resettlement-housing-gad_3.jpg

回迁安置户多为原周边工厂职工,因彼此相识而让社区具备“熟人社会”基础。因此,在满足高容积率等经济技术指标下,如何为他们创造一个有利于延续情感联结、又有体面生活感的新家园,成为我们要思考的要点。

| 围合的居住组团
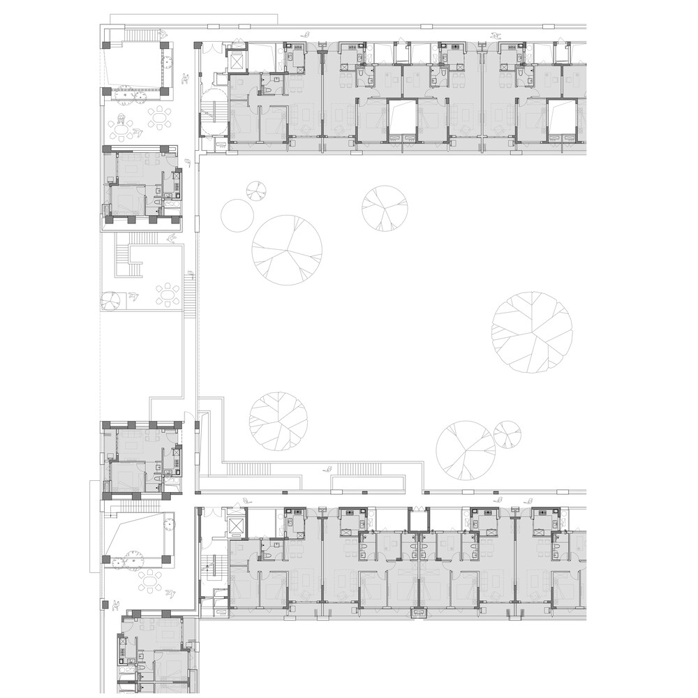
在组团布局上,安置房位于社区中心区域,虽相较于商品房无法获得一线江景,但西邻邻里中心和幼儿园,东面城市公园,享有生活便利与另一种城市景观。

an-zhi-fang-bei-zu-tuan-4fping-mian-tu-dai-pou-mian-biao-zhu-2.jpg
not-ready-quzhou-lixian-future-community-resettlement-housing-gad_11.jpg

not-ready-quzhou-lixian-future-community-resettlement-housing-gad_1.jpg
不同于常规商品房行列式布局下空间感的均质乏味,我们用围合的空间方式创造出更具归属感的内向空间。为了安置房后续的顺利分配,我们不挑战大众对“南北”户型的偏好,将安置房布置在组团南北侧,东西向则布置公租房与部分社区公共服务设施。人群混居、全维空间布局带来了更多视线、言语的交流机会,不仅为邻里互识创造条件,也形成社区“街道眼”,增强了社区安全感。

not-ready-quzhou-lixian-future-community-resettlement-housing-gad_25.jpg

not-ready-quzhou-lixian-future-community-resettlement-housing-gad_21.jpg

为了进一步提供交往发生的可能性,我们在1-7层设计了一套连接不同楼层公共空间的跃层、跨单元立体游廊系统,称为“立体街坊”。“立体街坊”有效地缩短了单元与楼层间的距离,消解了板式高层巨大的空间感知尺度;同时将原本只能在底层发生的单元间的交往活动扩展到竖向维度,并在底层和屋顶外创造了新的活动空间。

not-ready-quzhou-lixian-future-community-resettlement-housing-gad_5.jpg

not-ready-quzhou-lixian-future-community-resettlement-housing-gad_6.jpg


| 更利交往的户型组合
安置房与公租房包含50-130㎡面积范围内共九种户型,为了让住户获得更好的居住体验,我们在设计上多采用双开间、三开间阳台,以最大限度地获取阳光、城市景观及内院等资源,确保无论南北或东西,均有所得。熟人基础让我们可以采用外廊式住宅布局,每层以4-6户为单元,在满足高容积率指标、不同户型灵活组合的需求下,实现了更多的交往与活动空间。而部分核心筒外置,不仅能为户型争取到更好的通风条件,其与外廊相连形成的更大平台空间,也为居民归家、停留和偶遇的发生,提供了更多的可能性。

not-ready-quzhou-lixian-future-community-resettlement-housing-gad_18.jpg

not-ready-quzhou-lixian-future-community-resettlement-housing-gad_19.jpg

not-ready-quzhou-lixian-future-community-resettlement-housing-gad_24.jpg


| 回应传统的立面设计
为了让空间尺度更亲切、舒适,我们用白色与木纹涂料分界7层空间上下;东西向立面采用预制镂空砖,用低成本的物理节能方法实现遮阳隔热。衢州古城门和传统民居给予我们形式灵感:大尺度的古城拱形门洞增强了居民回家的仪式感,高层立面的水平挑檐唤起“老宅披檐”的衢州记忆,兼有防水、防雨等现实功能……衢州礼贤未来社区安置房于2022年8月验收交付,得到了入住居民的积极反馈。面对这样一个有别于以往商业开发的住宅项目,我们将持续关注其使用状态,不仅是期待那些自发的新生活,也包括公共区域的使用效率、维护成本等,以验证或修正设计思考

not-ready-quzhou-lixian-future-community-resettlement-housing-gad_3.jpg

not-ready-quzhou-lixian-future-community-resettlement-housing-gad_8.jpg

not-ready-quzhou-lixian-future-community-resettlement-housing-gad_9.jpg

not-ready-quzhou-lixian-future-community-resettlement-housing-gad_10.jpg

not-ready-quzhou-lixian-future-community-resettlement-housing-gad_20.jpg

not-ready-quzhou-lixian-future-community-resettlement-housing-gad_23.jpg


▼ 技术图纸

zong-ping-mian-tu-4.jpg

an-zhi-fang-bei-zu-tuan-4fping-mian-tu-dai-pou-mian-biao-zhu-2.jpg

an-zhi-fang-bei-zu-tuan-4fping-mian-tu-ju-bu-3.jpg

1-1pou-mian-tu-1.jpg




回复

使用道具 举报

您需要登录后才可以回帖 登录 | 立即注册