建筑书签
人气 359

[深圳]坪山美术馆

[复制链接]
TAG 2025-11-5 18:57
001-pingshan-art-museum-shenzhen-vector-architects.jpg
地理位置:深圳市坪山区荷康路
建筑/室内/景观设计:直向建筑
主持建筑师:董功
项目建筑师:韩悦、张鹏、李锦腾
建筑面积:47269.05平方米
设计时间:2013.05-2014.01
建造时间:2014.10-2019.03

004-pingshan-art-museum-shenzhen-vector-architects.jpg

深圳坪山美术馆项目始于我们在2013年初参与的一次国际设计竞赛——“坪山文化聚落”。直向建筑、都市实践、开放建筑与深圳欧博设计,组成联合体参赛。竞赛由坪山新区管委会主办,深圳招商地产承办,深圳市规划和国土资源委员会学术策划、监督与组织,共有八组团队入围。最终,我们参与的联合体赢得了这次竞赛的第一名。




008-pingshan-art-museum-shenzhen-vector-architects.jpg

006-pingshan-art-museum-shenzhen-vector-architects.jpg

在中标方案中,联合体对当时中国城市化进程中的新城地标型公共文化建筑提出反思:针对传统巨构化的建筑形式,脱离日常生活的空间尺度以及运营方式,我们试图建立起一种新的空间类型,以此来探讨当代文化艺术空间应当如何介入连续的城市脉络,从而更大程度地将文化艺术与市民的日常生活相融合。

007-pingshan-art-museum-shenzhen-vector-architects.jpg





回复

使用道具 举报

您需要登录后才可以回帖 登录 | 立即注册

TAG 2025-11-5 19:20
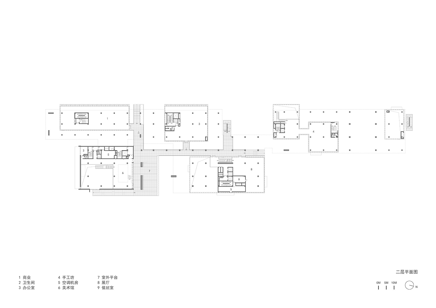
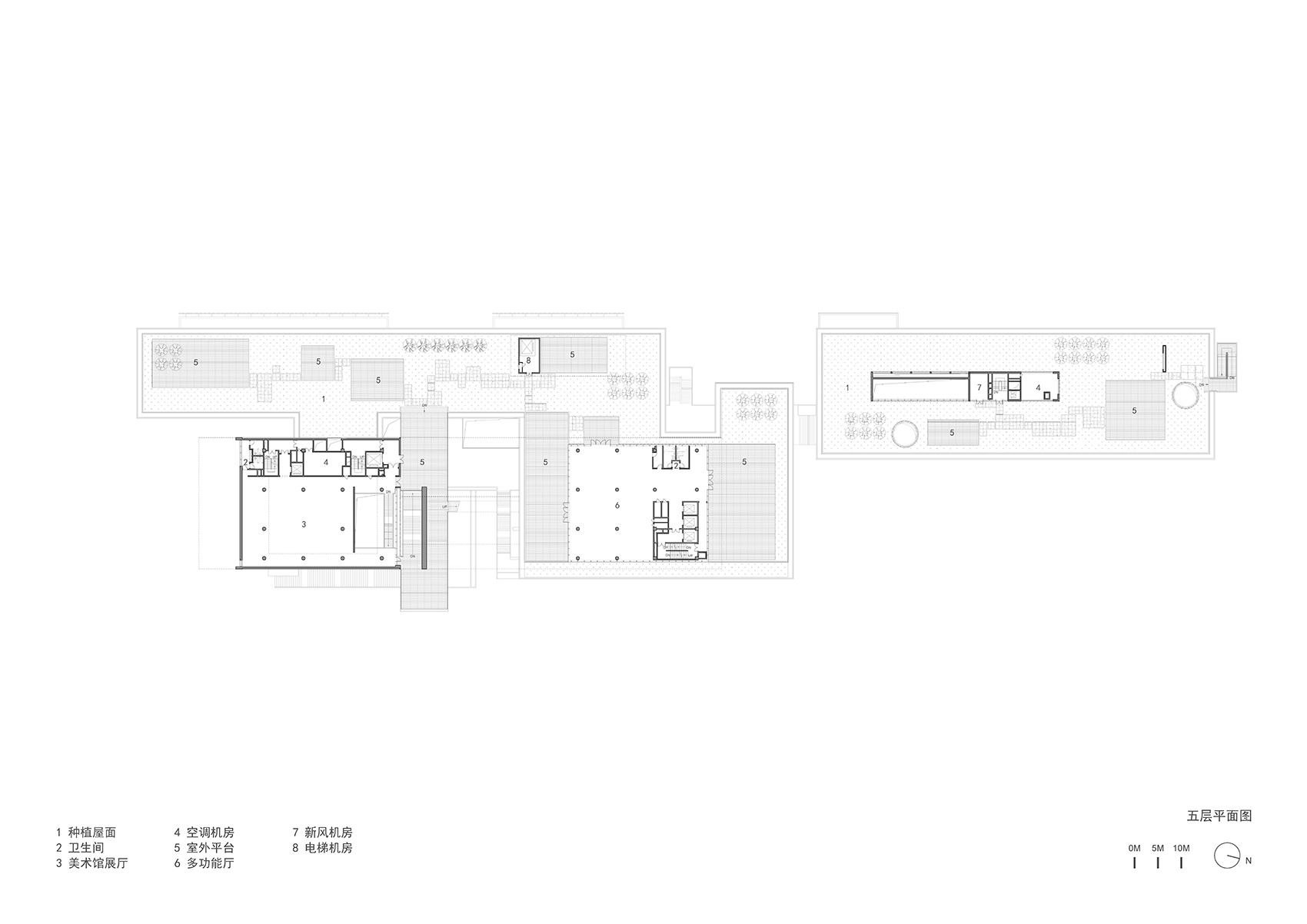
▼技术图纸
038-pingshan-art-museum-shenzhen-vector-architects.jpg
031-pingshan-art-museum-shenzhen-vector-architects.jpg
035-pingshan-art-museum-shenzhen-vector-architects.jpg
036-pingshan-art-museum-shenzhen-vector-architects.jpg
037-pingshan-art-museum-shenzhen-vector-architects.jpg
029-pingshan-art-museum-shenzhen-vector-architects.jpg

030-pingshan-art-museum-shenzhen-vector-architects.jpg
032-pingshan-art-museum-shenzhen-vector-architects.jpg
033-pingshan-art-museum-shenzhen-vector-architects.jpg
034-pingshan-art-museum-shenzhen-vector-architects.jpg

040-pingshan-art-museum-shenzhen-vector-architects.jpg
041-pingshan-art-museum-shenzhen-vector-architects.jpg




039-pingshan-art-museum-shenzhen-vector-architects.jpg
回复

使用道具 举报

TAG 2025-11-5 19:06
012-pingshan-art-museum-shenzhen-vector-architects.jpg

坪山文化聚落包含美术馆、大剧院、图书馆三个主要功能。首先,我们根据整体布局策略,将7.4万平方米的大体量空间碎化成由具体功能单元组成的独立小体量,这些小体量在垂直方向上相互叠落,创造出一个立体的空间系统。其次,我们在三个主要功能建筑的底层采取了架空的策略,利用一个连续架起的两层高巨构体量将它们由南向北串联起来,将聚落中的各种共享功能置入其中。人们能够在漂浮的平台层和大尺度的绿色屋顶上随意漫步,自由穿行于不同功能的建筑之间。在局部位置,叠落的体量会穿过巨构,形成垂直方向上尺度适宜的标志性形象。同时,我们通过绿植、遮阳的设计,使户外公共活动空间能够充分适应深圳当地气候。

019-pingshan-art-museum-shenzhen-vector-architects.jpg
013-pingshan-art-museum-shenzhen-vector-architects.jpg
018-pingshan-art-museum-shenzhen-vector-architects.jpg

坦率地讲,这是一个相对先锋的理念,它挑战了人们传统印象中“高大上”的文化建筑形象,拒绝了超尺度空间造成的“距离感”。在获得由专家评审团评定的第一名后,我们的方案被推荐到当地政府。由于竞赛阶段的设计在落地过程中存在一些实操层面的难度,后期相关主管单位也在理念接受度上有不同的差异,导致设计从概念阶段到最终的呈现阶段经历了长达半年多的磨合,进行了较大的设计调整。但最后,在美术馆的地块内,竞赛阶段的核心空间逻辑关系还是被相当程度地保留了下来。

016-pingshan-art-museum-shenzhen-vector-architects.jpg
014-pingshan-art-museum-shenzhen-vector-architects.jpg

坪山美术馆所处的地块位于城市空间类型转变的边界上,西侧是典型的承载城市居住生活的高密度街区,东侧是尺度巨大的城市自然公园。美术馆沿南北方向,在这块扁长的地块上平行于边界布置。在空间布局层面,我们采用了碎化体量的方式将美术馆的各功能分散设置在不同高度。立体叠落的空间结构使得多层次的立体公共平台系统成为可能,让建筑形成了穿透和多孔的特征。一方面,这个空间结构避免了传统集中式大体量对城市交通的阻断;另一方面,底层架空的策略也使得城市街区的空间体验能够美术馆中得以延续。

022-pingshan-art-museum-shenzhen-vector-architects.jpg
023-pingshan-art-museum-shenzhen-vector-architects.jpg

我们在建筑底层设置了主要入口,引入了日常商业空间,在美术馆地块内建立起更加日常的生活空间氛围。我们希望,美术馆在日常运营时间以外,建筑群落的其他功能也能够长时间对城市友好开放。人们可以在一天中的任意时间穿越美术馆,从住宅区到达城市公园,或是沿着台阶漫步向上。漫游路线从首层延伸至二层平台,将城市中的人们引向美术馆二层门厅及其它商业空间。

020-pingshan-art-museum-shenzhen-vector-architects.jpg
021-pingshan-art-museum-shenzhen-vector-architects.jpg
024-pingshan-art-museum-shenzhen-vector-architects.jpg

有别于传统美术馆的室内参观流线,我们利用户二层以上的户外立体公共平台系统串联起各个展览空间,树木穿插于其中。丰富的檐下空间结合深圳当地温润多雨、日光充沛的气候,为人们提供充足的自然通风与遮阳、避雨条件,也让人们能够最大程度享受到由于紧邻城市公园所带来的开阔视野。在我们的想象中,美术馆将会充分吸纳地块两侧的人群汇集于建筑之中,成为承载日常生活的界面,进而创造出一种新的公共空间场景秩序,实现城市与自然的连接。

009-pingshan-art-museum-shenzhen-vector-architects.jpg

2019年初,坪山美术馆圆满竣工,落成之后得到了当地政府和相关单位的高度重视,与大剧院、图书馆共同成为了坪山当地的“文化地标”。在我们看来,它们不仅是城市空间层面的地标,更是社会文化影响力层面的地标,依托于建筑空间产生的艺术文化力正在持续辐射至深圳,乃至全国。

003-pingshan-art-museum-shenzhen-vector-architects.jpg
005-pingshan-art-museum-shenzhen-vector-architects.jpg

2019年3月,坪山美术馆开馆大展《未知城市——中国当代建筑装置影像展》举行,展览由张宇星、野城和韩晶策划,集结了全国范围内百名建筑师参展。2019年5月,都市实践创建合伙人刘晓都跨界担任坪山美术馆馆长,推动了一系列有影响力的展览举办,包括《共时|坪山美术馆2019年度大展》《九层塔:空间与视觉的魔术》等跨年及系列展览,《合意-中国园林中的人》《缪斯,愚公与指南针》等中型系列展览,《造像坪山——深圳经济特区建立40周年庆》等社区公共艺术项目。

002-pingshan-art-museum-shenzhen-vector-architects.jpg
026-pingshan-art-museum-shenzhen-vector-architects.jpg

我们认为,美术馆背后的运营模式以及持续的文化内容生产是文化建筑持续生命力的来源。在这一点上,坪山美术馆无疑是幸运的。我们相信,一个好的文化建筑除了拥有好的空间品质,与城市建立起良好的物理关系之外,还需要持续输出有生命力的内容,从而最终让建筑成为一个真正的文化引擎。




回复

使用道具 举报