建筑书签
人气 237

[深圳]南山外国语学校科华学校

[复制链接]
TAG 2025-11-5 22:13
00996_copy_SU.jpg
建筑师: Link-Arc建筑师事务所
面积:54000 m²
项目年份:2019
摄影师:苏圣亮, Roland Halbe

006_copy_SU.jpg

深圳南山外国语学校科华学校是一座总建筑面积为54000平米的九年一贯制学校,包含中小学教室、各类专业教室、图书馆、体育馆、游泳馆、演艺报告厅、教师宿舍楼、中小学学生餐厅、教师餐厅以及专业运动操场等。


0096_copy_SU.jpg

位于深圳大冲区的南山外国语九年一贯制学校,代表着长达十年的大冲旧改项目的最后一片拼图,同时见证了这片区域从密集的“城中村”到城市化的“垂直森林”的剧烈变迁。
004_L.jpg
001_copy_SU.jpg

策略一:水平与垂直
自然是思维和创造力的源泉,而创造更亲近自然与开放的教学环境,是建筑师设计的出发点。特别是在容积率高昂的大涌,建筑师更体会到为师生们创造更多接触自然机会的紧迫感 — 这也成为建筑师创建一个水平向的、低密度校园的动力。


007_copy_SU.jpg
008_L.jpg
建筑师将南山外国语学校的校园构想为一座流线型、水平向的花园,与它所服务的城市住宅群落的密集、垂直纵向感形成强烈对比。校园的设计意图打破建筑与周边社区之间的边界,创造一个与周边社区“无缝联接”的,由封闭、半围合和绿色开放多种空间交错而成的低层线性混合体。


0091_L.jpg

得益于教学楼的层数,这组建筑为这个过于密集的住宅社区提供了“呼吸”的机会,同时又可以把学生们从教室里吸引到室外,“回归”校园生活,重新与自然建立健康的联系。


0092_copy_SU.jpg

00999_copy_SU.jpg
00998_copy_SU.jpg


策略二:交织花园
在这个巨大而平缓的架构中,蜿蜒的教学楼像不断分叉的河流,将场地分割成了六个不同品质的户外庭院,形成半私密的教学与活动的岛屿。


00991_copy_Roland.jpg

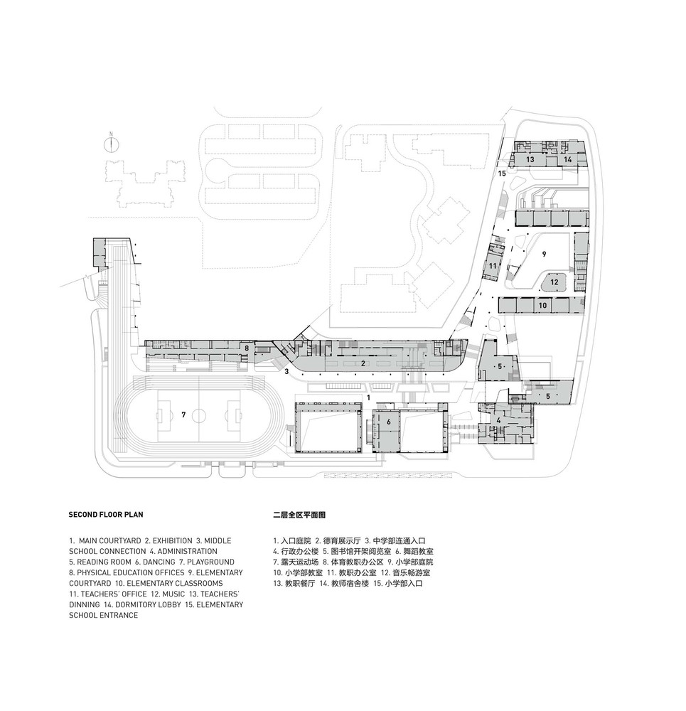
其六个庭院分别为:入口庭院、礼仪前庭,小学部庭院、中学部庭院、运动庭院、榕树庭院--每个庭院都对应着一个主要的建筑功能。


00997_copy_SU.jpg
00993_copy_SU.jpg

与户外庭院相对应,校园建筑被设计成三层高的带状体量,它们追逐着场地中每一寸从钢筋混凝土森林(周边住宅)里透出的光,沿着整个场地东侧缓缓地延展至西侧。反之,在这些蜿蜒曲折的教学带之间衍生出了流动性的、序列性的户外活动空间,成为了每个教学组团量身定制的庭院。


009997_copy_SU.jpg
009991_copy_SU.jpg

在中学教学区和综合教学区,动态细长的庭院随建筑体量变化而闭合;在小学教学区和图书馆,庭院被楼梯呵护般的包裹着,抑或反过来,延伸至开阔的露天操场。同时,橘色的首层天花吊顶将校园与各个庭院联结在了一起,学生们即使在深圳多发的雨季,不用打伞就可以到达校园的各个不同位置。


0099_copy_SU.jpg
00995_copy_SU.jpg

策略三:“大设计”的空间策略及生态创新
这个项目意图颠覆打破传统学校的设计方式,不再将校园单纯的划分为建筑区和功能区,而是通过一系列剖面上的空间组织使得每个教室都能最大化的接触阳光和绿荫。这种策略强化出了一种错落叠加的竖向空间组织,借此生成了无止境的剖面多样性。自上而下的自然光形成了一系列的“垂直光井”,为内部的教学、游嬉、创作和互动等活动打造了极其丰富的空间形态。


009993_L.jpg

整个校园的场地东北高、西南低,建筑师利用场地现有的自然坡度将一系列阶梯状的教学平台架构于体育馆、游泳馆、演艺报告厅、餐厅这些大空间功能之上。这些大空间成为了承载师生教学、活动空间的“地面”的同时,又利用了台地的关系,让这些大空间同时也享有地面层的入口,或半地下的自然采光。


009999_copy.jpg
0099992_copy.jpg

与业主合作,陆轶辰与他的团队将整个校园的建筑、室内、公共空间以及视觉标识系统作为一个“大设计”的整体来考虑。从植物选栽、校园色彩系统、标识与门牌、直到教室里每一个学生书包摆放的书柜、雨天雨伞的伞柜都成为了建筑设计的一部分。


0099997_copy.jpg

针对深圳潮湿高温的先天气候,建筑师对照明与空气质量进行了研究。薄剖面、遮阳系统、太阳能板、被动式节能措施、种植屋面和透水砖等被环保、节能措施的采用,也使得南山外国语学校科华学校成为了中国华南地区第一座绿建三星标准的九年一贯制学校。


0097_copy_Roland.jpg





回复

使用道具 举报

您需要登录后才可以回帖 登录 | 立即注册

TAG 2025-11-6 07:36
▼技术图纸

C_000_Site_Plan.jpg
C_001_GF.jpg

C_002_2F.jpg
C_003_3F.jpg
C_004_4F.jpg
C_005_5F.jpg
C_006_B1.jpg
0099996_L.jpg
009995_L.jpg


回复

使用道具 举报