建筑书签
人气 2470

[] [北京]三区美术馆 | CUN

[复制链接]
TAG 2019-7-8 13:42
008-Beijing-Area-Three-Art-Museum-China-by-CUN-Design.jpg

静谧与光明 | 北京三区美术馆
设计公司:CUN寸DESIGN
建筑设计:崔树&大周
室内设计:崔树&吴巍
参与设计:刘孝宇,马仕佳
位       置:北京市朝阳区甲壹号创意园
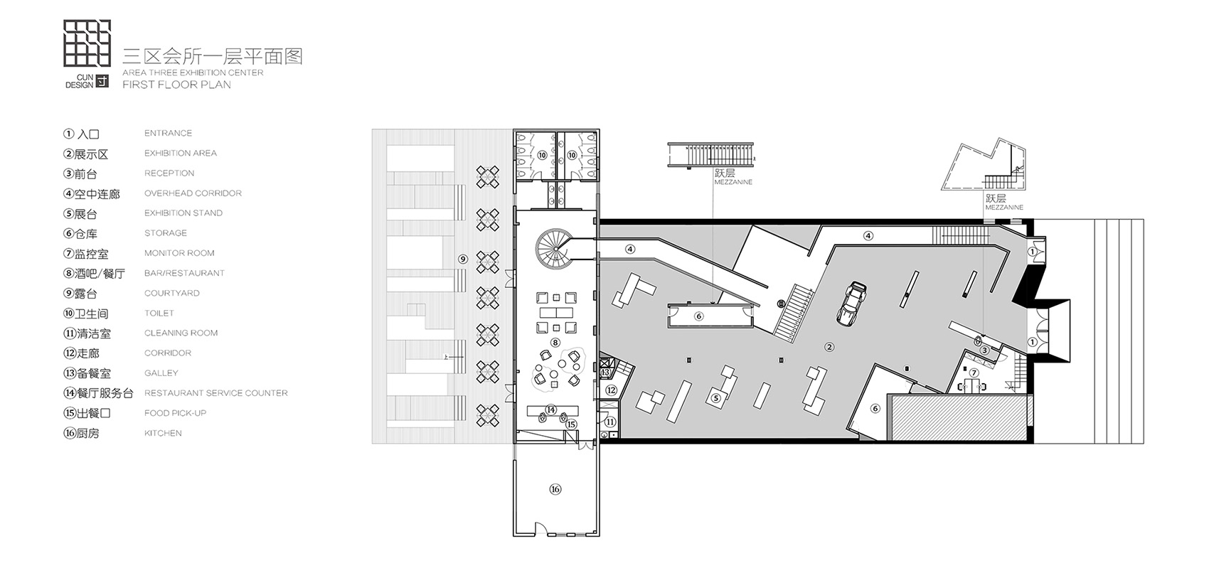
功       能:展示空间
面       积:2300㎡
摄  影  师:王厅,王瑾


Google map



路易·康说过“如果你脑中装满了那些不属于你的东西,你会忘掉它们,它们永远不会留在你脑中,而且你会丧失对于自我价值的意识。”他的建筑精髓曾经被约翰罗贝尔总结于《静谧与光明》。

在我看来,路易·康的世界,为自己找了一个很清晰的问题,所以他的每份建筑的答卷有着沉着冷静的答案。我想他更多的是对自已与对设计的思考,设计师最重要的是打破墙壁而去创造新的可能,而不是不断复制自己,更不能是复制别人。一直以来,每个空间的意义对于我来说都是一次全新打破的开始,这种打破是指空间更像是创意者不断突破的一个状态和这个状态后面所呈现出来的故事。而使用在其中的设计对我们而言,就是传递情绪与故事的一个窗口。那么该如何破壁?刚好,崔树的好朋友吴巍有一个集合了天时地利人和为一身的项目合作,而这个项目也是他们俩破壁的又一次开始。

项目位于北京一处创意产业园区内,当我们进入这座原本通透的建筑中,其实就明白了,这里应该属于简单而干净的。作为一处被要求成为聚会、发布会和艺术品展出的空间,它不该属于瞬间的艺术,而是需要在限定的范围内营造出让受众过目难忘、回味无穷的视觉效果。这里不该属于第一区面的界面空间,也不属于第二区面的精神与语言,这里更像是在不同时间、不同身份、不同故事交汇的第三区,而在“三区”打破的是:


NO.1
身份的突破:性格&职业&喜好


甲方是三名女孩,每一位的身份几乎都是多重职业,拥有各自的行为张性与人格特点,她们既是这个时代的PE(投资人)又是时尚行业的行走者。三区也是她们共同为彼此友谊而设定的领域。而空间只有一个,如何设计这个需要多性格的空间?

于是,我们来到这个空间,大开敞的建筑让原有的空间极安静与纯粹。就是这样的安静才可以把性格多变的活动氛围进行到淋漓尽致,更是不限风格,如同一张白纸可以随意写画。对于美,她必定是大众所去追求的。

三位不同女孩,生活风格和审美趣味与他们所处的社会地位来决定她们对空间的喜好有着对应的关系。而空间设计在其中建立则是:某一阶层或同一群体成员共性的达成,来设计出她们都相互认同的符号语言。往往最简单的即是最通俗的也应该是最高级的,抹去她们身份的多层重叠,在一张干净的空间里突破彼此的身份,这里只有参加聚会的人与与人沟通的人。

NO.2
设计师的突破:工装&家装


这个项目是崔树与他的好朋友吴巍的合作。在中国,设计市场的设计师被强制冠以一些以领域的名词如“家装设计师/工装设计师”,之前我也会有这样的认知,但在合作三区项目的过程中,才发现我的判断是错误的。

家装设计师给空间带来的是,设计师对“人”的服务体系,整个过程中给到甲方的是设计服务舒适度与信任关系的处理;而工装设计师更多是针对“空间”,其中的逻辑与关系之间的处理。如果设计师都是带着镣铐在跳舞的,做得越来越深,越来越透彻的时候,自然就会带上这样的镣铐。但是好的设计师,他不应该拒绝镣铐的,心甘情愿地带上它,以设计者的身份面对空间,擦掉别人定义的边界,然后一点一点地去突破它,这才是设计师该做的事。

NO.3
功能的突破:会所&餐厅&活动&美术馆


人会存在精神分裂,每一个多重的性格好像是完全不同的人,人格有他个别的姓名,记忆,特质及行为方式。而空间也存在它的精神分裂,在三区空间中空间没有定义的框架来约束它,这里就是空间,可以是会所、餐厅、也可以是聚会的聚集地、是美术馆,所有的场景只需在这个纯粹的空间无限转换替代,故事不断在发生,三区还是三区。


整个空间中,黑与白也属于精神分裂之一,两者的关系同世界上其他一切事物一样,既是矛盾的又是统一的。世界正是在这种矛盾、统一中不断变化发展,同时相应产生了各种美。这两种色调的无穷延伸感与强烈感召力的视觉表现形式明确而充分地向来到空间的每一位人传达一种气氛,留下一种印象,把在空间的“人”,“物”推向更安静的审美界面。这样也是符合空间它本身的商业运用价值,使这个极简单且又时尚潮流的空间吸引着新贵成为他们的聚集地。



NO.4
区域的突破:建筑&室内&视觉


其实我们对建筑空间的认识,不应局限于长宽高的体系,而是透过“物”“人”“秩序”“特质”“环境”和“时间”来理解,场所不仅具有建筑/景观/室内/平面等视觉空间的形式,而且还有精神上的意义。一个项目它一定是一个整体性的,而整体性它是不需要界限的,将视觉间的边界模糊化,用几何的建筑体块在整体空间中再次进行空间组合。经过组合的空间中留出一定的空白,营造一定的含蓄,让受众去体会、感受才有趣味,能够给受众一个足够广阔的思维空间,使受众能有感受、想象和喘息的余地。

三区靠一个白色走廊贯穿了整个空间的每一层出口、入口、坡道、与楼梯的体系来完成的,就像一个神经中枢穿越时空:它时而进入通高的中庭,时而进入狭小半私密的开敞空间,同时又连接着楼层之间的流线转换。漫步式的体系不仅是交通的内核,更创造了一个丰富而富有身体节奏感的漫步秩序。融为一体的连廊则弱化了固化的空间感,形成活跃的交通聚集空间,诱导人们通过这些路径在不同的空间内交流与互动。

▼白色走廊贯穿了每层的空间

寸DESIGN 设置了两个主入口,也是空间中两条主要的行为动线的起点。因为一层的场域需要一个可以容纳设备与展示道具的出入口,活动前期进场与后期清场在这里进出都会很方便快捷;另一个入口则是连接着通往二层之上的玻璃廊道,同时两个入口也是互通的。中间的区域则是三区的主场地,高挑通透的环境。

与展厅相连的则是服务于整个展会的餐饮吧,穿过狭长的过道,这里色调的差异就可区分功能区域的手法来进行设计。整个项目中,餐饮区域更像是垂直的轴,不断运转着制作美食与饮品,可以同时服务于会展区,二层之上的私密空间与后院的露台区域。顾客也可以与好友在此进行攀谈与小憩。

虽然在使用功能上过渡空间是配角,但在传递空间的情感上却是整个三区空间的主角。它既不割裂相邻区域,也不独立于相邻区域,更像是从封闭转向开放、由确定转向模糊、由单一转向综合,在一定程度上抹去了边界,使整个空间形成连贯体。

通过餐吧到达的是三区展厅的后院,这里可以将室内的活动延伸至此,同一天空下可以分享各自的生活态度、分享美味佳肴、也分享着喜怒哀乐。让越发空虚的精神世界,在这个空间中得到情感的交流,压力的释放。对于餐厅,寸DESIGN不再沿用主空间大面积的白色,而是将四周的墙壁压黑,当门闭合时,整个空间的墙体放佛被无限延伸,在金属顶面与桌上蜡烛的漫反射光源下,置身于美术馆来享用美食,四个角落安置着各个雕塑,反而有些趣味儿。

甲方是个性十分鲜明的三位女孩,而他们的会议室也同样设计了两种性格,同一个大会议室中,一分为二一半纯白,一半纯黑,代表着她们本身的个性风格。三层各个区域的入口,都设置成为通顶的黑色旋转木门,空间序列感也赋予了建筑更多的情感,使之承载艺术、通透性,影响体验者的视知觉体验等。这是建筑设计中表达时间性的一种方式,是一种设计理念,同样也是一种非常重要的营造空间的设计手法。同时,三层是这个空间可以进行接待会客的区域,设置有餐吧与会议功能,让到来的客人资源在这里达到一定机率的价值置换,是属于整个空间最为核心的区域。


NO.5
关系的突破:服务者&使用者


在互联网代替现实交流的现代生活中,我们现在与三四十年前相比,孤独的现代人在现实生活中更加明显,我们在虚拟的世界里过得很欢畅,但是在现实的世界里却越来越隔阂。而三区这样的空间则是可以让人与人在现实的场景中找到可以一起分享的伙伴。当你看到一个非常高兴的场景聚会或者活动时,当你的笑声融入空间时,在潜意识里你会获得另外一种感受,这种感受就是:我是一个人,我和我的同类有着共同的情感。这是当下的现代社会,极其需要的一种渴望,也就是认知感。

同时三区也是服务者到使用者的关系,设计师在服务每个项目的同时,也是与甲方相识-相知-相熟的一个递增关系的过程,好项目需要好设计,更需要好处理。这种“关系”所构建的身份认同的一致性和差异性是需要不断沟通的,在设计进行的过程中,也引导了大家某种审美趣味的同一性。设计师在其中承载着创意象征及身份认同的关键符号。在三区结束后,我们与甲方时常聚在这个空间,成为使用者的一员来更深地体验这个结束的空间。

“Get boxed in” is the fastest way to kill our creativity.
Breakthrough – wait silently for the beam of light that make ourselves more than what we were.
固步自封是让人的创造力死去的最快方式。
破壁之创-静谧地等待那一束突破自己的光明。

039-Beijing-Area-Three-Art-Museum-China-by-CUN-Design.jpg
010-Beijing-Area-Three-Art-Museum-China-by-CUN-Design.jpg

006-Beijing-Area-Three-Art-Museum-China-by-CUN-Design.jpg

009-Beijing-Area-Three-Art-Museum-China-by-CUN-Design.jpg

011-Beijing-Area-Three-Art-Museum-China-by-CUN-Design.jpg





回复

使用道具 举报

您需要登录后才可以回帖 登录 | 立即注册

回复

使用道具 举报

回复

使用道具 举报

TAG 2019-7-19 09:56
013-Beijing-Area-Three-Art-Museum-China-by-CUN-Design.jpg

014-Beijing-Area-Three-Art-Museum-China-by-CUN-Design.jpg

017-Beijing-Area-Three-Art-Museum-China-by-CUN-Design.jpg

024-Beijing-Area-Three-Art-Museum-China-by-CUN-Design.jpg

026-Beijing-Area-Three-Art-Museum-China-by-CUN-Design.jpg

034-Beijing-Area-Three-Art-Museum-China-by-CUN-Design.jpg

044-Beijing-Area-Three-Art-Museum-China-by-CUN-Design.jpg

046-Beijing-Area-Three-Art-Museum-China-by-CUN-Design.jpg

051-Beijing-Area-Three-Art-Museum-China-by-CUN-Design.jpg

042-Beijing-Area-Three-Art-Museum-China-by-CUN-Design.jpg


回复

使用道具 举报

TAG 2019-7-19 09:54
047-Beijing-Area-Three-Art-Museum-China-by-CUN-Design.jpg

015-Beijing-Area-Three-Art-Museum-China-by-CUN-Design.jpg

028-Beijing-Area-Three-Art-Museum-China-by-CUN-Design.jpg

048-Beijing-Area-Three-Art-Museum-China-by-CUN-Design.jpg

021-Beijing-Area-Three-Art-Museum-China-by-CUN-Design.jpg

052-Beijing-Area-Three-Art-Museum-China-by-CUN-Design.jpg

049-Beijing-Area-Three-Art-Museum-China-by-CUN-Design.jpg

027-Beijing-Area-Three-Art-Museum-China-by-CUN-Design.jpg


回复

使用道具 举报