建筑书签
人气 1617

[西藏]墨脱气象中心

[复制链接]
TAG 2019-7-18 21:02
181130110692eef8be04fa42e6.jpg

地       点:西藏自治区林芝市墨脱县

业       主:墨脱气象局

竣工时间:2017

建筑面积:1,854平方米

建筑类型:办公,住宿

建筑设计:EID Architecture

建筑设计团队:姜平,陆生云、方冠婷、龚昀


Google map


       墨脱气象中心位于中国西藏林芝境内雅鲁藏布江的大拐弯处,基地周边群山环绕,景色壮丽,半山的峡谷之中,可远眺南迦巴瓦峰,周边景观植被茂盛,蕴含原生态的朴素之美。

       墨脱具有独特的气候地貌特征,属亚热带雨林气候,降水量充沛,全年潮湿多雨。这里平均海拔只有1200米,最低处甚至仅115米。作为中国境内最后一个通达公路的县城,其道路状况十分恶劣,单程调研考察需要花费大概一周的时间。遥远的地理位置为设计与建造带来极大的挑战。墨脱气象中心的设计建造属援藏类项目,设计初衷通过远程介入的方式,为当地的气象局提供一个复合事业机构办公空间及员工宿舍公共服务类建筑,充分利用在地的建造方式、材料与工艺,实现当代建筑的地域性表达。

“可呼吸”的建筑空间回应居者工作与生活的日常 | A breathing building that responds to residents’ daily life

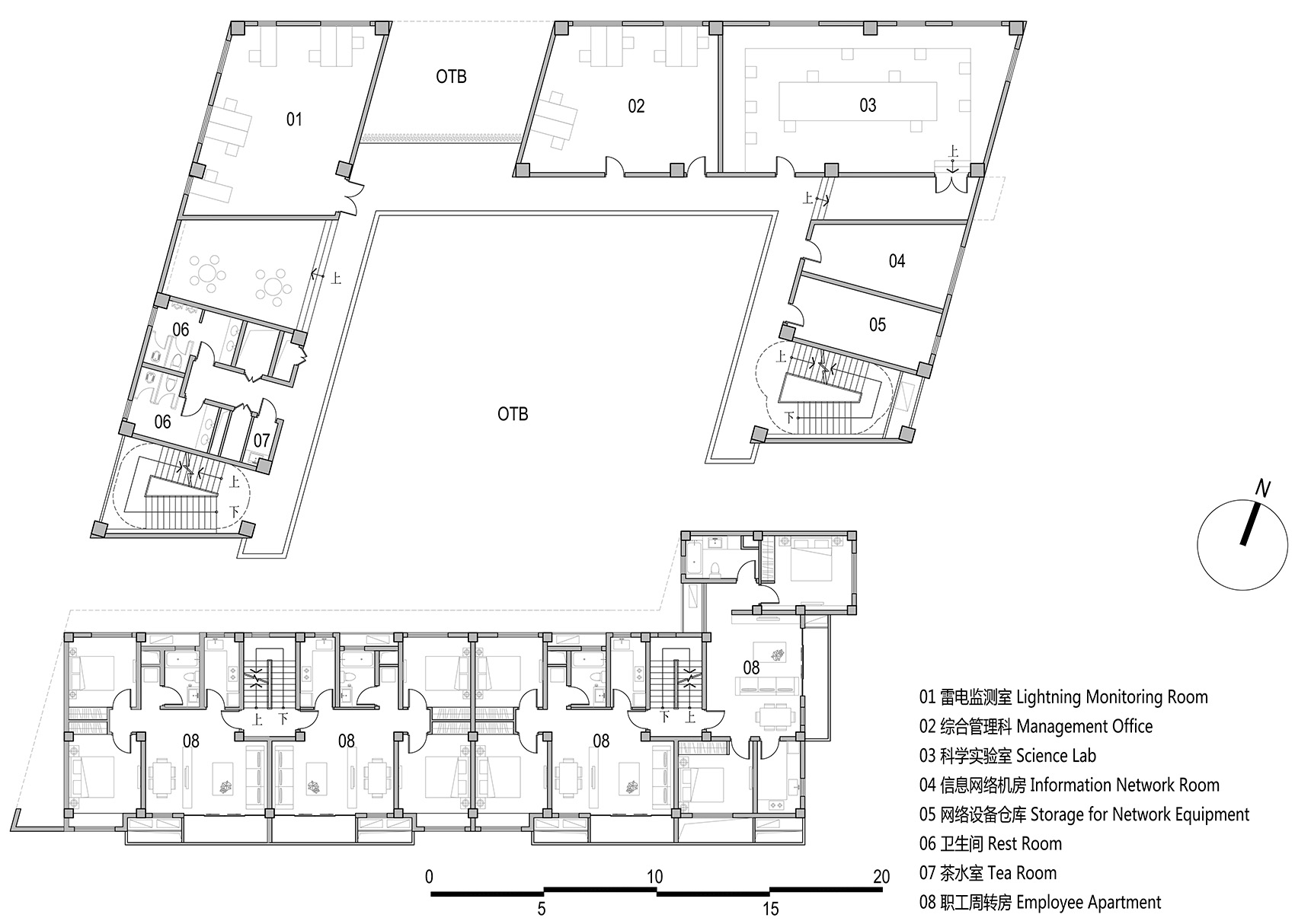
       由于周边建筑对项目基地形成独特的围合之势,该设计总体布局采用了围合的格局,充分回应所处位置的景观与环境关系。院落的回廊顺应地域性气候,最大化景观视线的同时,结合当地居民对工作与生活的使用需求,形成一个相对内聚的院落空间。

       屋顶通过有序的曲折变化使建筑形态与对面的峡谷山体走势相呼应,同时充分考虑到在降雨量较大的时期迅速进行建筑排水。底层局部采用架空的设计手法,承袭当地杆栏式建筑特色,高低错落的隙间有效促进自然通风,同时丰富立面形态。

质朴原初的远程介入实践 | Reinterpretation of the Vernacular

       建筑师在实际的建造实践过程中发现,受限于当地建筑材料选择与施工建造技术的严重匮乏,大型建筑机械进出困难,无疑为实际的建筑营造带来严峻的阻碍,建造难度远远超出预期。远程的网络通讯与实时沟通软件成为建筑设计建造的主要方式。

       这次远程介入的探索,从选择当地松木、黏土砖和石材开始,以最简单经济的方式进行现场施工,呈现质朴原初的砖混建筑结构建筑。设计细节充分尊重当地民族文化特色,将门巴族、珞巴族传统文化元素与现代建筑语汇相融合,利用素朴的建筑语言表达毫无矫饰的建筑内涵。

       该项目于2018年初竣工,目前已投入使用。这座建筑有效汲取当地的文化特质,具有独特的辨识度,荣获2018年亚太房产大奖中国区最佳公共服务建筑及2017意大利The Plan Award未来办公商务类建筑最终提名奖。


013-medog-meteorological-center-tibet-china-by-eid-architecture.jpg

001-medog-meteorological-center-tibet-china-by-eid-architecture.jpg

014-medog-meteorological-center-tibet-china-by-eid-architecture.jpg

007-medog-meteorological-center-tibet-china-by-eid-architecture.jpg
012-medog-meteorological-center-tibet-china-by-eid-architecture.jpg

006-medog-meteorological-center-tibet-china-by-eid-architecture.jpg

005-medog-meteorological-center-tibet-china-by-eid-architecture.jpg

003-medog-meteorological-center-tibet-china-by-eid-architecture.jpg

004-medog-meteorological-center-tibet-china-by-eid-architecture.jpg


回复

使用道具 举报

您需要登录后才可以回帖 登录 | 立即注册

TAG 2019-7-18 21:45
010-medog-meteorological-center-tibet-china-by-eid-architecture.jpg

009-medog-meteorological-center-tibet-china-by-eid-architecture.jpg

019-medog-meteorological-center-tibet-china-by-eid-architecture.jpg

018-medog-meteorological-center-tibet-china-by-eid-architecture-1.jpg

011-medog-meteorological-center-tibet-china-by-eid-architecture.jpg

020-medog-meteorological-center-tibet-china-by-eid-architecture.jpg
回复

使用道具 举报

TAG 2019-7-18 21:49
022-medog-meteorological-center-tibet-china-by-eid-architecture.jpg 023-medog-meteorological-center-tibet-china-by-eid-architecture.gif
021-medog-meteorological-center-tibet-china-by-eid-architecture.jpg








回复

使用道具 举报

TAG 2019-7-18 21:49
029-medog-meteorological-center-tibet-china-by-eid-architecture.jpg

024-medog-meteorological-center-tibet-china-by-eid-architecture.jpg

026-medog-meteorological-center-tibet-china-by-eid-architecture.jpg

031-medog-meteorological-center-tibet-china-by-eid-architecture.jpg




030-medog-meteorological-center-tibet-china-by-eid-architecture.jpg
025-medog-meteorological-center-tibet-china-by-eid-architecture.jpg
027-medog-meteorological-center-tibet-china-by-eid-architecture.jpg
028-medog-meteorological-center-tibet-china-by-eid-architecture.jpg
回复

使用道具 举报