建筑书签
人气 2723

[北京]中欧国际工商学院北京分校

[复制链接]
TAG 2019-7-29 15:05
1322091749-11685-ceibs028-1000x664.jpg

Architects: ACXT Arquitectos / Garai
Location: Beijing, China
Collaborating Architects: Jose Cavallero (IDOM – ACXT), Inés López (IDOM – ACXT)
Collaborating Chinese Architects: Li Dongmei (IPPR), Chen Xuesong (IPPR), Li Huaisheng (Tsinghua Gongmei), Lin Junda (Tsinghua Gongmei) y Guo Wei (Tsinghua Gongmei)
Client: CEIBS
Project Year: 2010
Project Area: 18,000 sqm
Photographs: Aitor Ortiz


Google map


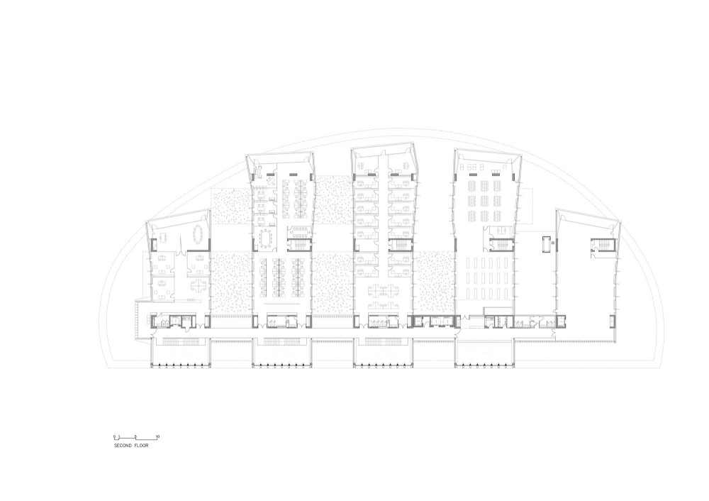
CEIBS(中欧国际工商学院)是亚洲最优秀的商业学院。随着学院的发展,校方决定在北京新建一所分校,并委任ACXT-IDOM建筑设计集团为总建筑师。

新校区位于北京中关村科技园,占地面积约33000平方米,建筑分为地上三层,地下一层,总建筑面积19000平方米。该项目的限制条件主要有三:一是教学功能,二是中关村科技园的总体规划(该规划是在一片森林中零星分布几座简洁的建筑物,如同茫茫大海中的几座孤岛),以及客户的设计要求(工程分两个阶段建设,并在一期结束后建筑外观完好一如竣工之后)。

为保留更多公共空间,地下室完全占据了地块的下方,构成了一期的建筑,主要用途有演讲厅、阶梯教室、讨论室和吧台。设计仿照传统中式建筑,分布着许多庭院,不但能调节气候,还能让我们优先考虑不同空间之间的关系,不会错过欣赏建筑全貌的机会,因为这座建筑刚好位于北京的紫禁城之中。

在其他两层设有更多讨论教室和普通教室,以及其余非公用空间,如教授及员工办公室。这些房间如手指一样连接着一条长长的走廊。每层都有不同的形状,与森林的关系也各不相同。地下室就如同大树的树干,庭院栽满了翠绿的竹子,创造出一种私密空间,二层的带顶露台也具有相似的氛围,而三楼主要为员工与教授办公室,如同轮船上的瞭望台一般俯瞰着森林。

传统的中式建筑和设计思想令我们深深为之着迷,这一点早已体现在我们的建筑理念当中,建筑外形正由此而来,在色彩与材料的选择上,尤其在建筑的空间格局上,也都很容易就能看出来。CEIBS的办学精神体现了中欧文化之间的碰撞,这也正是建筑体现这一精神的方式。

现在,我们可以看到一期工程已经结束,很快将开始二期建设,届时建筑将以令人尊重的欧洲观点来诠释风水学中中式建筑的动态阴阳平衡理念。

1322091778-11685-ceibs034-1000x307.jpg

1322091621-11685-ceibs001-1000x408.jpg

1322091788-11685-ceibs036-1000x428.jpg

1322091692-11685-ceibs014-1000x308.jpg

1322091661-11685-ceibs008-1000x466.jpg

1322091688-11685-ceibs013-1000x539.jpg

1322091651-11685-ceibs006-1000x664.jpg

1322091765-11685-ceibs031-1000x642.jpg
1322091791-11685-ceibs037-1000x625.jpg

1322091769-11685-ceibs032-1000x496.jpg





回复

使用道具 举报

您需要登录后才可以回帖 登录 | 立即注册

回复

使用道具 举报

回复

使用道具 举报

TAG 2019-7-29 15:14
1322091736-11685-ceibs022-714x1000.jpg
1322091711-11685-ceibs018-863x1000.jpg


1322091743-11685-ceibs023-648x1000.jpg

1322091773-11685-ceibs033-492x1000.jpg

1322091625-11685-ceibs002-706x1000.jpg

1322091657-11685-ceibs007-687x1000.jpg

1322091678-11685-ceibs011-728x1000.jpg

1322091639-11685-ceibs004-710x1000.jpg


1322091717-11685-ceibs019-1000x850.jpg

1322091630-11685-ceibs003-628x1000.jpg

1322091706-11685-ceibs017-1000x777.jpg


回复

使用道具 举报