建筑书签
人气 2013

[] [上海]八分园

[复制链接]
TAG 2019-7-29 17:24
003-Eight-Tenths-Garden-960x540.jpg

建  筑  师: Wutopia Lab
地       址: 中国,上海
类       别: 展陈建筑
总建筑师: 俞挺
项目负责人: 葛俊
设  计  师: 戴欣旸
建筑面积: 2000.0 平方米
项目年份: 2016
摄  影  师: CreatAR



001-Eight-Tenths-Garden-960x719.jpg

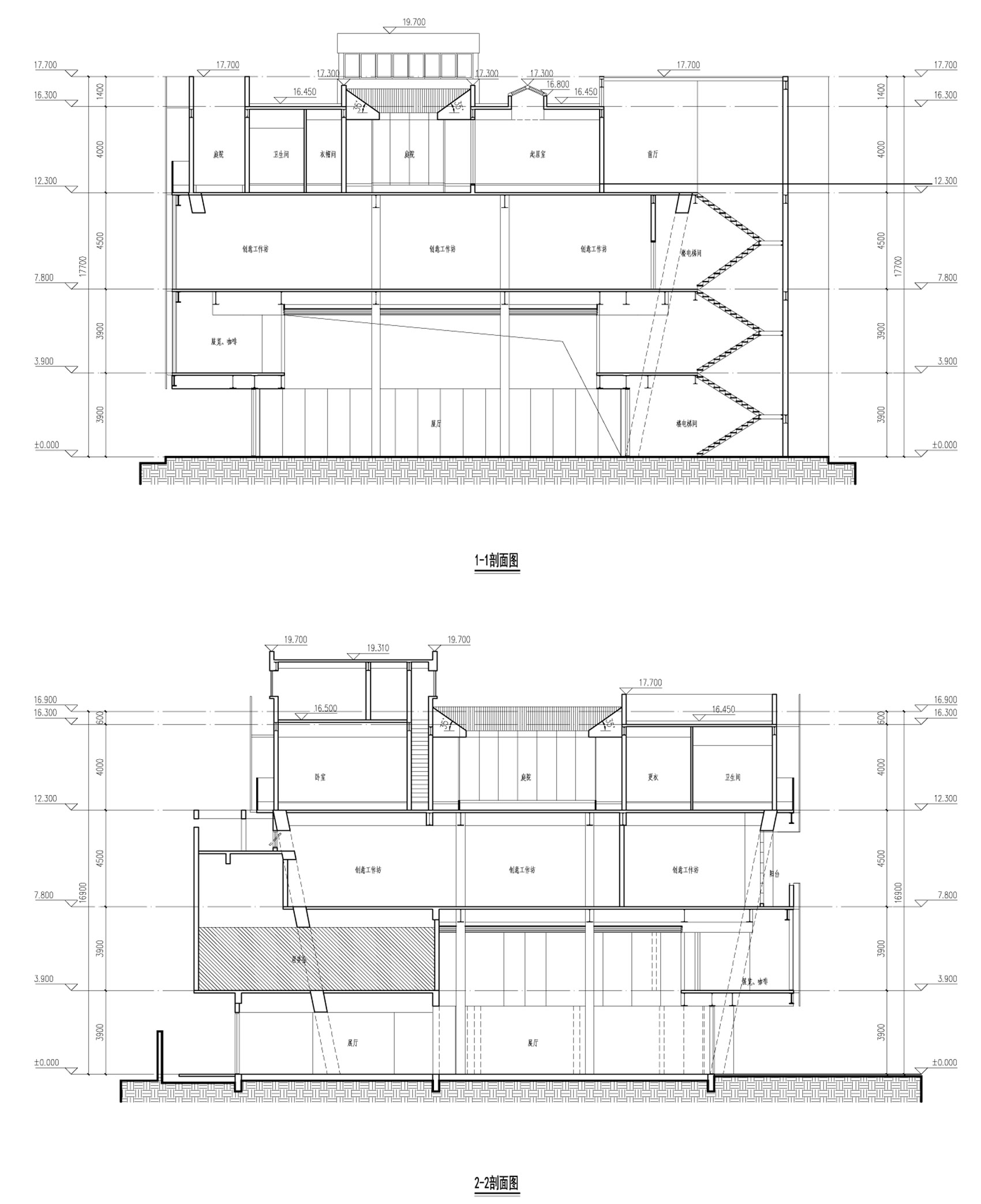
八分园是一个专门展出工艺美术作品的美术馆,空时可以作为发布会的场地,有咖啡和图书室,办公,民宿,此外还有餐厅,书房和棋牌室,是一个微型文化综合体。

002-Eight-Tenths-Garden-960x719.jpg

它原本是售楼中心。售楼中心是街角三角形的两层建筑其中的一栋和嵌在其上的四层圆型大厅,入口在三角形内院。楼的一侧是居委会。另一侧用作沿街商铺。

我们希望建筑能展现出上海性,基于生活的上海性是一种让人愉悦但克制的丰富。这2000平米的建筑在空间上要显得变化丰富但彼此有联系。我既不希望强迫症一般的极简主义,也不喜欢浮夸的场景并置却毫无联系。我用对偶展开空间关系。园子是外,形式感复杂,建筑是内,呈现朴素。但这些朴素又有些不同,美术馆要朴素有力,而边上的书房和餐厅要温暖柔软,三楼的联合办公就要接近简陋,而四楼的民宿则回到克制的优雅,还要呈现出某些可以容易解读的精神性,在屋顶通过营建菜园向古老的文人园林致敬。

四层的民宿是隐藏在整个八分园的惊喜和高潮。每间民宿都有一个空中的院子,公共区域有一个四水归堂的天井。每个院子都是当代的中式庭院,取材于仇英的绘画而加以提炼,是一次关于垂直城市的实践,试图打造一个真正意义的空中别墅。

设计的部分和居委以及商铺在建筑上粘连在一起。内院里除了园厅,其余两面都是其他功能的背面,挂满了空调和各种管子,我们用一道帷幕作为围墙将杂乱的环境和八分园剥离开。

先后尝试了波形阳光板,离瓦,穿孔铝板(花纹是像素化的千里江山图),铝格栅加垂直绿化,我拒绝了爬藤绿化墙。围墙的样式不重要但必须有而且不能完全封死,必须是黑色。这样的围墙把周边环境疏离在八分园之外并成为八分园的对比,使得八分园成为贴着旧物而新生的场所。我回答是的。镀锌框架也是旧物的一部分,而黑色格栅则是新物,至于什么花纹都是可以的,但花纹的最后尺寸决定审美的细致则不可放松。至于黑色才能有力把围墙和旧物切开并谦虚地成为背景是中央那个华丽圆形帷幕的下句。

我们用穿孔铝板以折扇的方式在立面上形成面纱。这面纱不是气候边界,它背后有玻璃幕墙,有院子也有阳台。我们在立面和气候边界之间创造了一个模糊地带。
我们希望建造一个园子,向七十年代的上海街道公园致敬,向当地的园林历史致敬。让园子和建筑彼此合为一体。建筑和园子的总体一起才算是建筑学的。

我们在前院设计了竹林通幽的入口,将八分园独立出来,但八分园不是私家园林,它免费向周边居民开放。这种节制的开放让八分园获得了周边居民的认同,他们珍惜这个园子,安静地在园子走几步,满足。我在各种复杂邻里关系中改建空间,这是唯一一次获得邻里写表扬信称赞的项目。这也是我把前院设计纳入城市微空间复兴计划的原因,这个街口一度沦为简单的过道,原本的景观破败不堪,但一个前院就改变了这个街角,使得它又活泼起来。建筑学的社会学意义显现出来。

业主先生是上海著名搪瓷厂的最后一任厂长,搪瓷是曾经主宰中国任日常生活最重要的日用品,如今则几乎不稳。这些年他收藏了大量的搪瓷,质量和数量惊人搪瓷可以成为这个微型文化综合体的文眼。随着八分园的建造,厂长的公子从米兰留学回来,创办了一个时尚的搪瓷品牌并入驻八分园,这才是技术和家庭传统的新生。

因为内院园子占地一亩不到约四百多平米,恰好八分地而得名八分园,再者这八分也可以提醒做事做人八分不可太满。

069-Eight-Tenths-Garden-Roof.jpg

007-Eight-Tenths-Garden-Appearance.jpg

006-Eight-Tenths-Garden-Appearance.jpg

008-Eight-Tenths-Garden-Court.jpg

004-Eight-Tenths-Garden-960x1440.jpg

007-Eight-Tenths-Garden-960x1440.jpg

012-Eight-Tenths-Garden-Relationship.jpg

009-Eight-Tenths-Garden-960x640.jpg

074-Eight-Tenths-Garden-Detail.jpg

075-Eight-Tenths-Garden-Detail.jpg

073-Eight-Tenths-Garden-Detail.jpg

049-Eight-Tenths-Garden-Living-Room.jpg

044-Eight-Tenths-Garden-1F.jpg

043-Eight-Tenths-Garden-1F.jpg

041-Eight-Tenths-Garden-1F.jpg

026-Eight-Tenths-Garden-Detail.jpg

009-Eight-Tenths-Garden-Court.jpg

010-Eight-Tenths-Garden.jpg

011-Eight-Tenths-Garden.jpg

070-Eight-Tenths-Garden-Light.jpg

072-Eight-Tenths-Garden-Light.jpg

071-Eight-Tenths-Garden-Light.jpg

045-Eight-Tenths-Garden-Exhibition.jpg

047-Eight-Tenths-Garden-Exhibition-e1490157772936.jpg



050-Eight-Tenths-Garden-Living-Room.jpg

051-Eight-Tenths-Garden-Living-Room.jpg

053-Eight-Tenths-Garden-4F-Garden.jpg

056-Eight-Tenths-Garden-4F-Garden.jpg

060-Eight-Tenths-Garden-4F-Garden.jpg
062-Eight-Tenths-Garden-Stairs.jpg

063-Eight-Tenths-Garden-Stairs.jpg

064-Eight-Tenths-Garden-Stairs.jpg

065-Eight-Tenths-Garden-Stairs.jpg

066-Eight-Tenths-Garden-Stairs.jpg

067-Eight-Tenths-Garden-Stairs.jpg

076-Eight-Tenths-Garden-Drawing.jpg
077-Eight-Tenths-Garden-Drawing.jpg
078-Eight-Tenths-Garden-Drawing.jpg
079-Eight-Tenths-Garden-Drawing.jpg
080-Eight-Tenths-Garden-Drawing.jpg
081-Eight-Tenths-Garden-Drawing.jpg
回复

使用道具 举报

您需要登录后才可以回帖 登录 | 立即注册