建筑书签
人气 1675

[九寨沟]九寨沟县漳扎镇小学

[复制链接]
TAG 2019-7-30 10:31
存在建筑-建筑摄影-30.jpg

建  筑  师: 中国建筑西南设计研究院
地       址: 漳扎镇,九寨沟县,阿坝州,四川省,中国
类       别: 小学及初中
主创建筑师: 刘艺
设计团队: 杨扬,黄熹
委  托  方: 九寨沟县人民政府
结构设计 :齐奇,朱海军,李权,冯领军,王成功,王帆
建筑面积 :5000.0 平方米
项目年份:2019
摄  影  师: 存在建筑, 杨扬


Google map


DJI_0391.jpg

原漳扎镇小学在地震中损坏,灾后重建规模为12班学校。项目设计需要在工期短、造价紧张的条件下,满足当地教育的需求,并回应特殊的人文与气候地域环境。

场地适应性
场地位于山地河谷,设计利用现有的缓坡地形,分别设置校园入口、教学区、运动场,三个不同标高的台地串联。我们借鉴当地藏族村寨的布局特点,将建筑拆分为多个坡屋顶体量的组合,山墙向阳,前低后高,层叠起伏的青瓦屋面与大山轮廓相呼应。建筑平面围合出多个半开放的三合院空间,将山景纳入其中,建筑与环境融为一体。


模块化空间
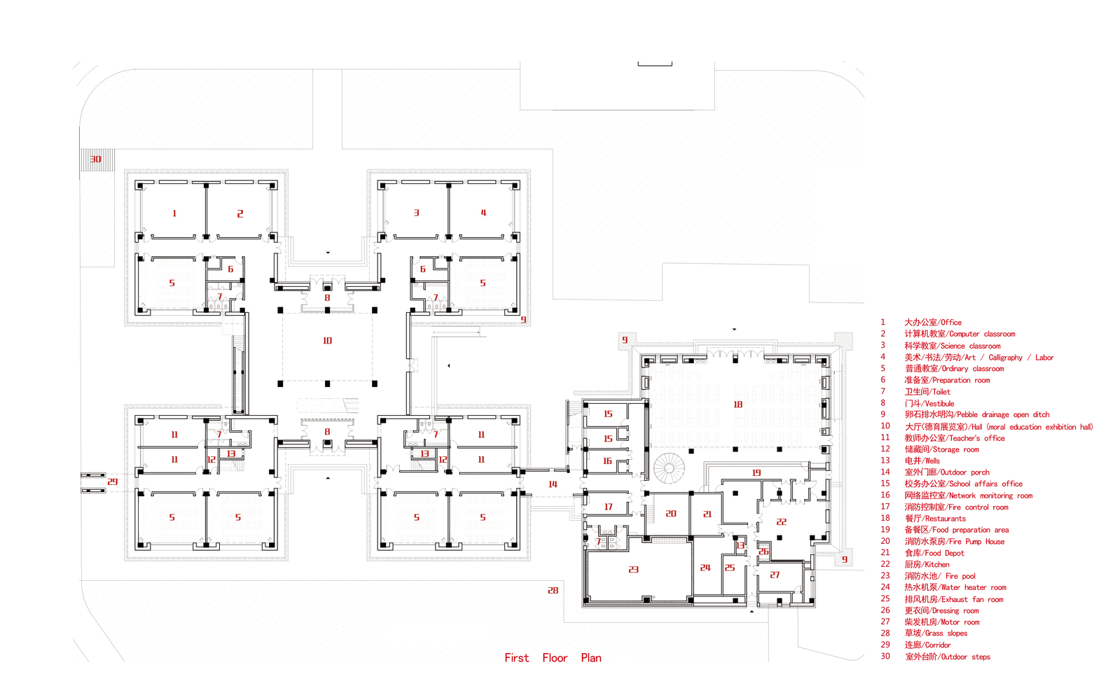
教学楼平面以藏族“吉祥结”图案为原型,建立文化图示上的心理认同:四个方形教学模块,围绕中央大厅,形成向心聚合的平面。每个模块尺寸为18米见方,内部包含三个标准教学单元,和一个由楼梯间、卫生间组成的服务核。教学单元可以在标准教室、专业教室、办公室之间灵活转化,以适应乡村小学的弹性变化。

中央的校园大厅是人流汇聚的核心。大厅45度对角方向分别与四个教学模块连接,南北和东西入口则分别通往四个庭院,便于室内外活动的互动。校园大厅既是门厅,又充当多功能厅,可以举办演出、讲座、展览等公共活动。

食堂图书馆作为一个单独的模块,采用了与教学楼双坡屋面不同的四坡十字形屋顶,内部两层空间上下连通,增强功能的开放与互动。

气候适应性

针对阿坝温差大、日照强烈的高原特点,北立面设小窗,南立面设大窗。加气混凝土砌块作为建筑的保温兼围护材料,可节省造价。通过热工计算,砌块外墙厚度为450毫米,形成了厚墙深窗的效果。中央校园大厅在冬季通过南侧玻璃墙和顶部天窗将阳光热量引入,提高室内温度,充当冬季花园和室内操场的功能。教学模块利用走道天窗和教室高侧窗设计,增加空间的流动感,并有效改善室内采光均匀度。

地域建筑特征

阿坝九寨民居融合了藏族碉楼和川西民居的特点,下部夯土垒石,上部木构架露明,建造体系清晰。设计以此为原型,主体为钢筋混凝土框架,下部砖石填充,上部设置高侧玻璃窗,形成“下重上轻”的材料关系。校园大厅和食堂的外墙面,尝试片石与混凝土块混合砌筑的方式,通过设置双向拉结钢筋,加强构造连接。建筑外观的灰色片石、白墙深窗、木板墙身、小青瓦屋面,在材料和构造层面延续了当地的建造传统,增强孩子们对家乡的记忆和情感。

存在建筑-建筑摄影-29.jpg

存在建筑-建筑摄影-27.jpg

存在建筑-建筑摄影-5.jpg

_U5A0199.jpg

存在建筑-建筑摄影-23.jpg

存在建筑-建筑摄影-19.jpg

存在建筑-建筑摄影-17.jpg

存在建筑-建筑摄影-15.jpg

存在建筑-建筑摄影-1.jpg

存在建筑-建筑摄影-2.jpg

存在建筑-建筑摄影-3.jpg

_U5A0227.jpg

_U5A0026.jpg

存在建筑-建筑摄影-22.jpg

_U5A0105.jpg

_U5A0119.jpg

_U5A0104.jpg

存在建筑-建筑摄影-10.jpg

IMG_0940.jpg

存在建筑-建筑摄影-14.jpg

_U5A0147.jpg

_U5A0191.jpg

存在建筑-建筑摄影-12.jpg

存在建筑-建筑摄影-11.jpg

_U5A0198.jpg

存在建筑-建筑摄影-24.jpg



总平面图.jpg

一层平面图.jpg

二层平面图.jpg

立面图1.jpg

立面图2.jpg

剖面图1.jpg

剖面图2.jpg
回复

使用道具 举报

您需要登录后才可以回帖 登录 | 立即注册